Postat 03 martie 2026
Proprietar Garsonieră / Spațiu Comercial (ballroom, lidl)
49 900 €
Prețul e negociabil
Persoana fizica
Compartimentare: Decomandat
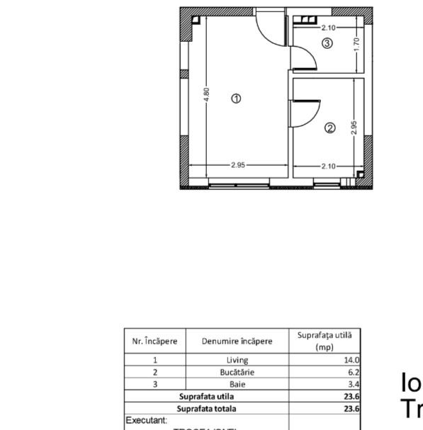
Suprafata utila: 24 m²
An constructie: Dupa 2000
Etaj: Parter
Descriere
Se vinde garsonieră modernă, situată în Dudu, în Chiajna, zonă centrală, lângă Lidl și Ballroom, într-un bloc nou construit în 2023.
Suprafață utilă: 24 mp.
Proprietatea beneficiază de tavane înalte și geamuri mari, oferind lumină naturală și senzație de spațiu aerisit.
Compartimentare decomandată
Baie complet utilată
Centrală proprie cu termostat ambient
Aer condiționat
Loc de parcare propriu cu blocator
Demisol înalt – acces direct din holul blocului (nu este în subsol)
Garsoniera se vinde nemobilată, oferind libertate totală de amenajare.
Datorită poziționării și accesului facil, este ideală atât pentru locuință, cât și pentru birou, cabinet sau alt tip de activitate comercială.
O proprietate potrivită pentru investiție, cu potențial bun de închiriere în zonă.
(Proprietar)
Suprafață utilă: 24 mp.
Proprietatea beneficiază de tavane înalte și geamuri mari, oferind lumină naturală și senzație de spațiu aerisit.
Compartimentare decomandată
Baie complet utilată
Centrală proprie cu termostat ambient
Aer condiționat
Loc de parcare propriu cu blocator
Demisol înalt – acces direct din holul blocului (nu este în subsol)
Garsoniera se vinde nemobilată, oferind libertate totală de amenajare.
Datorită poziționării și accesului facil, este ideală atât pentru locuință, cât și pentru birou, cabinet sau alt tip de activitate comercială.
O proprietate potrivită pentru investiție, cu potențial bun de închiriere în zonă.
(Proprietar)
ID: 300280027
Contactează vânzătorul
xxx xxx xxx
Localitate
Rosu
Bucuresti - Ilfov