Navighează la conținutul principal
Chat

Notificari

Adaugă anunț nou
Proiectare Hale Metalice / Beton Armat - Arhitectura / Structura
Proiectare Hale Metalice / Beton Armat - Arhitectura / Structura
Proiectare Hale Metalice / Beton Armat - Arhitectura / Structura
Proiectare Hale Metalice / Beton Armat - Arhitectura / Structura
Proiectare Hale Metalice / Beton Armat - Arhitectura / Structura
Proiectare Hale Metalice / Beton Armat - Arhitectura / Structura
Proiectare Hale Metalice / Beton Armat - Arhitectura / Structura
Postat 14 ianuarie 2026

Proiectare Hale Metalice / Beton Armat - Arhitectura / Structura

PromoveazăReactualizează

Persoana fizica

Descriere

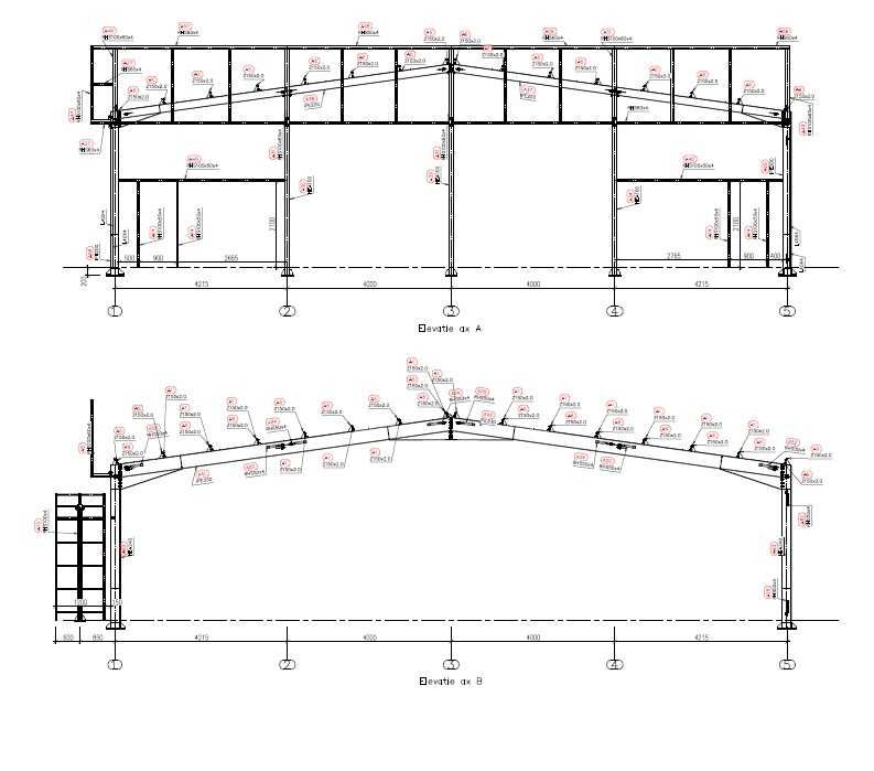
Birou de proiectare, oferim servicii profesionale de proiectare hale industriale și logistice, adaptate cerințelor fiecărui beneficiar și fluxurilor tehnologice specifice.

Servicii oferite:
• proiectare arhitectură hale industriale
• proiectare structură (metal / beton armat)
• proiectare instalații (sanitare, electrice, HVAC)
• DTAC – Documentație Tehnică pentru Autorizarea Construirii
• PTh + DE – Proiect Tehnic și Detalii de Execuție
• documentații pentru obținerea avizelor și acordurilor
• suport tehnic pe parcursul procesului de autorizare

Tipuri de hale:
• hale de producție
• hale de depozitare
• hale logistice

Proiectarea se realizează cu accent pe:
- funcționalitate
- optimizare costuri
- respectarea normativelor în vigoare

Tel. 07********76
ID: 298123429

Contactează vânzătorul

George

Pe OLX din februarie 2011

Activ ieri la 12:12

xxx xxx xxx

Localitate

Descarca aplicatia pentru telefonul tau