Postat 03 decembrie 2025
Proiectare Case Eficiente Energetic
Persoana fizica
Descriere
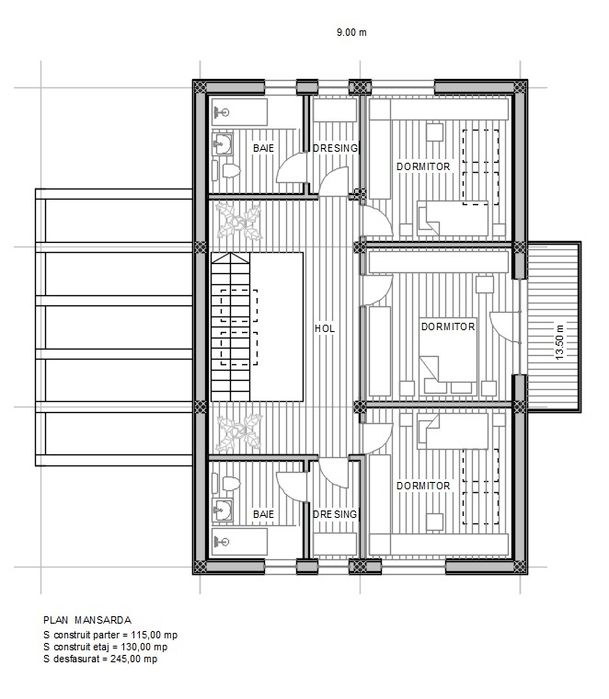
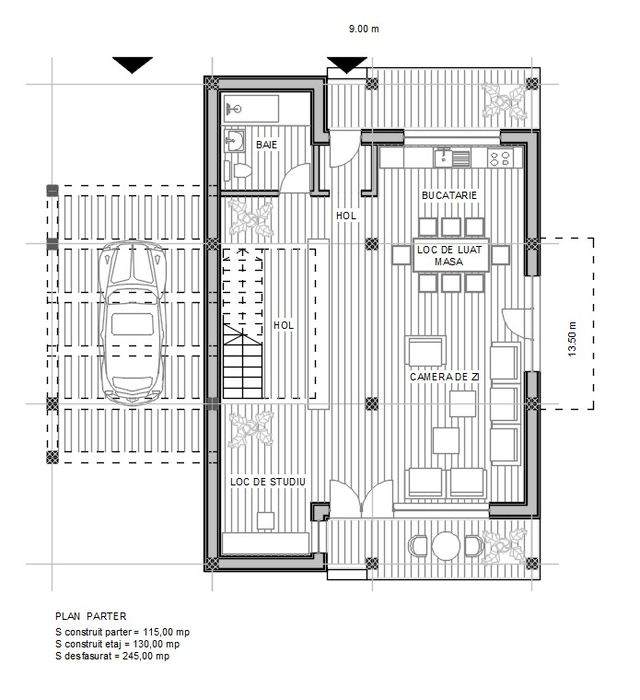
Locuință parter și etaj (mansardă) pe structură clasică din zidărie de cărămidă sau din lemn. Conține principiile de bază privind realizarea unei construcții eficiente energetic. Alături de materiale, construcția prezintă un volum compact, având un raport favorabil între anvelopă și volumul acesteia.
Finisajele exterioare, din materiale naturale cum ar fi lemnul, precum și alcătuirea eficientă a elementelor de închidere, contribuie la obținerea economiei de energie.
Valorificând potențialul energiei solare, configurarea spațială acordă o importanță deosebită orientării față de punctele cardinale. Dispunerea încăperilor este dictată de gruparea și desfășurarea cât mai eficientă a activităților zilnice.
Prin folosirea ferestrelor de mansardă sunt valorificate atât lumina și căldura soarelui, cât și ventilarea naturală, casa răspunzând astfel nevoilor contemporane de locuire, oferind în același timp economie de energie și confort.
Apelează la telefon 07********29.
Finisajele exterioare, din materiale naturale cum ar fi lemnul, precum și alcătuirea eficientă a elementelor de închidere, contribuie la obținerea economiei de energie.
Valorificând potențialul energiei solare, configurarea spațială acordă o importanță deosebită orientării față de punctele cardinale. Dispunerea încăperilor este dictată de gruparea și desfășurarea cât mai eficientă a activităților zilnice.
Prin folosirea ferestrelor de mansardă sunt valorificate atât lumina și căldura soarelui, cât și ventilarea naturală, casa răspunzând astfel nevoilor contemporane de locuire, oferind în același timp economie de energie și confort.
Apelează la telefon 07********29.
ID: 292420423
Contactează vânzătorul
xxx xxx xxx