Reactualizat la 08 februarie 2026
Pret redus!!!Proprietar casa noua P+1 – 3 dormitoare / 3 bai
139 000 €
Persoana fizica
Camere: 4 sau mai multe
Suprafata utila: 122 m²
Locuinta mobilata / utilata: Nemobilata / neutilata
Descriere
Proprietar persoana fizica ofera spre vânzare casă individuală P+1, situată pe Calea Moinești, la doar 5 minute de centrul Bacaului. Imobilul poate fi achiziționat la stadiul de alb(var) sau complet finisat (la cheie).
Preț la cheie: 139.000 euro(redus de la 145.000) pana la sfarsitul lunii Februarie
Detalii proprietate:
• Suprafață construită desfășurată: 154 mp
• Teren: 380 mp
• Regim de înălțime: P+1
Compartimentare:
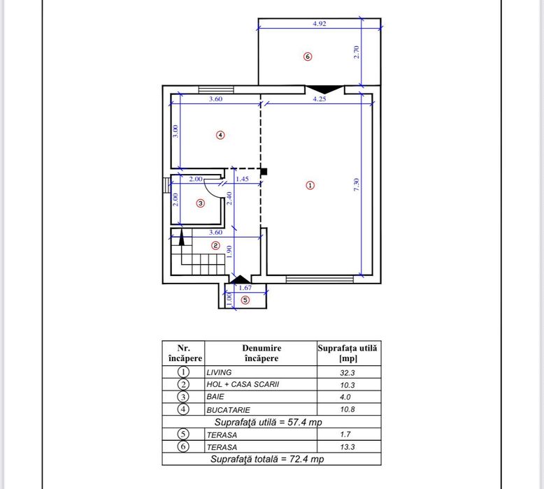
Parter:
• Living spațios – 31 mp
• Bucătărie
• Baie
• Hol
• Terasă
Etaj:
• 3 dormitoare
• 2 băi (una matrimonială)
• Hol
Total: 3 băi
Construcție solidă:
• Cadre beton armat + cărămidă EVOCERAMIC
• Tencuieli clasice (fără rigips)
• Termosistem
• Ferestre tripan SALAMANDER
• Ușă intrare DRUPANEL
Confort & finisaje:
• Încălzire în pardoseală (parter + etaj)
• Centrală termică Motan 25 kW
• Gresie Italia / Spania
• Parchet & uși PINUM
• Obiecte sanitare premium
• WC suspendat + bideu
Alte beneficii:
• Supraveghere video pe toată durata construcției
• Curte generoasă, ideală pentru relaxare
Pentru detalii și vizionări, sunați cu încredere!
Preț la cheie: 139.000 euro(redus de la 145.000) pana la sfarsitul lunii Februarie
Detalii proprietate:
• Suprafață construită desfășurată: 154 mp
• Teren: 380 mp
• Regim de înălțime: P+1
Compartimentare:
Parter:
• Living spațios – 31 mp
• Bucătărie
• Baie
• Hol
• Terasă
Etaj:
• 3 dormitoare
• 2 băi (una matrimonială)
• Hol
Total: 3 băi
Construcție solidă:
• Cadre beton armat + cărămidă EVOCERAMIC
• Tencuieli clasice (fără rigips)
• Termosistem
• Ferestre tripan SALAMANDER
• Ușă intrare DRUPANEL
Confort & finisaje:
• Încălzire în pardoseală (parter + etaj)
• Centrală termică Motan 25 kW
• Gresie Italia / Spania
• Parchet & uși PINUM
• Obiecte sanitare premium
• WC suspendat + bideu
Alte beneficii:
• Supraveghere video pe toată durata construcției
• Curte generoasă, ideală pentru relaxare
Pentru detalii și vizionări, sunați cu încredere!
ID: 289513626
Contactează vânzătorul
xxx xxx xxx
