Postat 11 martie 2026
Plevnei I Imobil S+P+M+7E I 3058mp I 42 camere I B10544
7 390 000 €
Firma
Vanzare/Inchiriere: Vanzare
Suprafata utila: 2 702 m²
Descriere
Imagineaza-ti locuinta perfecta, care sa reflecte personalitatea ta si sa satisfaca toate nevoile tale. Echipa noastra dedicata te va ajuta în cautarea locuintei ideale. Portofoliul nostru include exact ceea ce iti doresti tu si familia ta. Alege PYF REAL ESTATE pentru a transforma visul tau în realitate!
PYF REAL ESTATE va propune, prin agentul de zona George D, spre achizitionare , un imobil situat in apropierea Parcului Operei si a Casei de Cultura a Studentilor, o proprietate moderna, construita în 2006, ideala pentru cei care isi doresc sa investeasca in domeniul hotelier, in turism sau in proprietati rezidentiale.
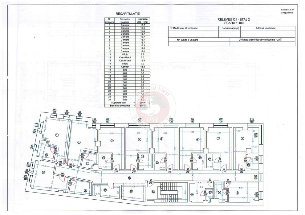
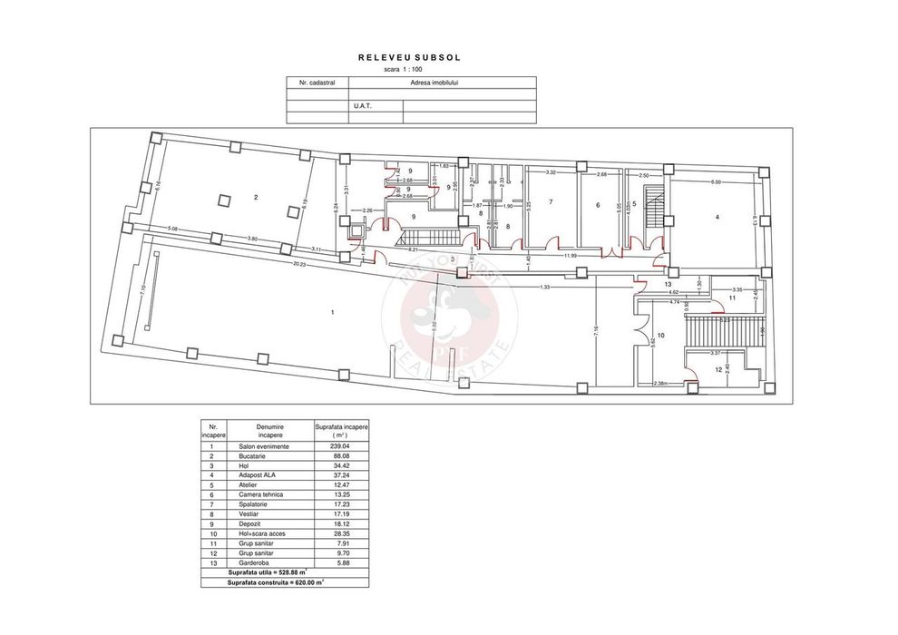
Având o suprafata totala de 3058 mp si o suprafata utila de 2702 mp imobilul se desfasoara pe o structura de tip S+M+P+7 etaje avand un numar de 45 de camere, fiecare cu baie proprie, precum si 2 sali de conferinta multifunctionale.
Localizarea sa centrala îl face usor accesibil si atractiv pentru diverse tipuri investitii, acest imobil putand fi transformat cu usurinta intr-un bloc rezidential usor de inchiriat ( Facultatea de Drept este situata la mai putin de 600 de metri de imobil iar Facultatea de Medicina se afla la o distanta 15 minute de mers pe jos ) sau ai poate fi pastrata destinatia actuala fiind usor accesibil datorita transportului in comun ( statiile troilebuzelor 85,66 si tramvaiul 44 aflandu-se la 1 minut de imobil iar statia de Metrou Eroilor fiind la o distanta de 600 de metri de imobil )
In apropiere regasim atat Parcul Operei, cat si Parcul Cismigiu iar pana in centrul capitalei se fac maxim 15 de minute cu transportul in comun
Curiozitatea va este starnita? Echipa PYF REAL ESTATE va invita la vizionare, pentru a vedea cu ochii dumnevoastra oportunitatea pe care o poate oferi achizitionarea acestui imobil
Doriti mai multe informatii sau aceasta oferta nu este ceea ce cautati? Nici o problema! Echipa PYF REAL ESTATE, suntem bucurosi sa va ajutam sa alegeti cea mai buna casa pentru familia dvs si de aceea va invitam sa ne contactati pentru ca, impreuna, sa gasim cea mai buna solutie locativa pentru dumneavoastra. ID intern:| PYF018B10544
Put You First nu este doar un motto, este misiunea noastra!
Pyf Real Estate percepe un comision de 3% din valoarea de achizitie a unui bun imobil pentru intermedierea unei tranzactii de vanzare-cumparare.
Din cauza numarului mare de oferte si a fluctuatiei pietei imobiliare informatiile din oferta pot suferi modificari atat in sens apreciativ, cat si in sens depreciativ, de asemenea, este posibil sa nu mai fie de actualitate la momentul prezentarii. Pentru clarificarea acestor aspecte va rugam solicitati actualizarea ofertei ofertelor dorite! De asemenea Pyf Real Estate este operator de date cu caracter personal, in conformitate cu reglementarile in vigoare. Pentru vizionarea unei ofere din portofoliul nostru va trebui semnat un contract de colaborare iar agentii nostri va vor cere un act de identitate pentru a completa acest contract. Neprezentarea acestui act poate conduce la neprogramarea sau anularea vizionarii ofertei dorite.
PYF REAL ESTATE va propune, prin agentul de zona George D, spre achizitionare , un imobil situat in apropierea Parcului Operei si a Casei de Cultura a Studentilor, o proprietate moderna, construita în 2006, ideala pentru cei care isi doresc sa investeasca in domeniul hotelier, in turism sau in proprietati rezidentiale.
Având o suprafata totala de 3058 mp si o suprafata utila de 2702 mp imobilul se desfasoara pe o structura de tip S+M+P+7 etaje avand un numar de 45 de camere, fiecare cu baie proprie, precum si 2 sali de conferinta multifunctionale.
Localizarea sa centrala îl face usor accesibil si atractiv pentru diverse tipuri investitii, acest imobil putand fi transformat cu usurinta intr-un bloc rezidential usor de inchiriat ( Facultatea de Drept este situata la mai putin de 600 de metri de imobil iar Facultatea de Medicina se afla la o distanta 15 minute de mers pe jos ) sau ai poate fi pastrata destinatia actuala fiind usor accesibil datorita transportului in comun ( statiile troilebuzelor 85,66 si tramvaiul 44 aflandu-se la 1 minut de imobil iar statia de Metrou Eroilor fiind la o distanta de 600 de metri de imobil )
In apropiere regasim atat Parcul Operei, cat si Parcul Cismigiu iar pana in centrul capitalei se fac maxim 15 de minute cu transportul in comun
Curiozitatea va este starnita? Echipa PYF REAL ESTATE va invita la vizionare, pentru a vedea cu ochii dumnevoastra oportunitatea pe care o poate oferi achizitionarea acestui imobil
Doriti mai multe informatii sau aceasta oferta nu este ceea ce cautati? Nici o problema! Echipa PYF REAL ESTATE, suntem bucurosi sa va ajutam sa alegeti cea mai buna casa pentru familia dvs si de aceea va invitam sa ne contactati pentru ca, impreuna, sa gasim cea mai buna solutie locativa pentru dumneavoastra. ID intern:| PYF018B10544
Put You First nu este doar un motto, este misiunea noastra!
Pyf Real Estate percepe un comision de 3% din valoarea de achizitie a unui bun imobil pentru intermedierea unei tranzactii de vanzare-cumparare.
Din cauza numarului mare de oferte si a fluctuatiei pietei imobiliare informatiile din oferta pot suferi modificari atat in sens apreciativ, cat si in sens depreciativ, de asemenea, este posibil sa nu mai fie de actualitate la momentul prezentarii. Pentru clarificarea acestor aspecte va rugam solicitati actualizarea ofertei ofertelor dorite! De asemenea Pyf Real Estate este operator de date cu caracter personal, in conformitate cu reglementarile in vigoare. Pentru vizionarea unei ofere din portofoliul nostru va trebui semnat un contract de colaborare iar agentii nostri va vor cere un act de identitate pentru a completa acest contract. Neprezentarea acestui act poate conduce la neprogramarea sau anularea vizionarii ofertei dorite.
ID: 300885249
Contactează vânzătorul
Localitate
Bucuresti, Sectorul 1
Bucuresti - Ilfov