Postat 12 noiembrie 2025
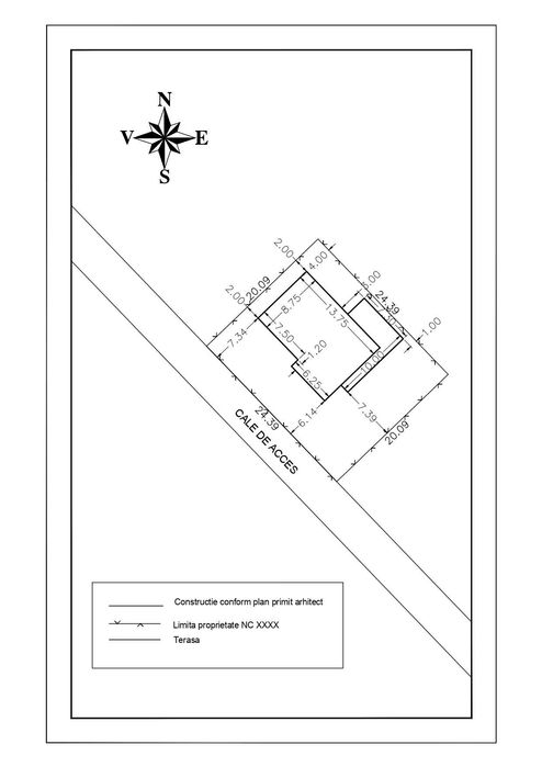
Plan topografic / ridicare topo / plan cu cote (vizat OCPI)
Persoana fizica
Descriere
Intocmesc : Plan topografic / ridicare topo / plan cu cote (vizat OCPI) - (minim 700 lei, in functie de complexitatea lucrarii)
- planurile se intocmesc pentru obtinerea autorizatiei de construire sau la cererea arhitectului sau proiectantului
- trasare axe constructii, pentru a se respecta proiectul avizat (600 – 800 lei)
- trasari limite de proprietate, intarusare teren (conform cadastrului avizat) (minim 300 lei)
Lucrarile se executa in Bucuresti, Ilfov, Giurgiu, Calarasi si judetele limitrofe
- planurile se intocmesc pentru obtinerea autorizatiei de construire sau la cererea arhitectului sau proiectantului
- trasare axe constructii, pentru a se respecta proiectul avizat (600 – 800 lei)
- trasari limite de proprietate, intarusare teren (conform cadastrului avizat) (minim 300 lei)
Lucrarile se executa in Bucuresti, Ilfov, Giurgiu, Calarasi si judetele limitrofe
ID: 250951409
Contactează vânzătorul
xxx xxx xxx
