Postat 21 ianuarie 2026
PF Vand Casa Individuala Popesti Deal
348 000 €
Prețul e negociabil
Persoana fizica
Camere: 4 sau mai multe
Suprafata utila: 172 m²
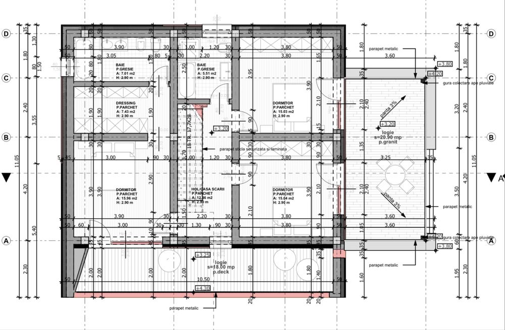
Descriere
Casa individuala P+E Popesti Deal - Panorama frumoasa.
-Suprafata teren: 620mp sau 1250.
Contracost se poate alipi inca o parcela de 620mp.
-Suprafata utila 172 mp + 90mp terase si este desfasurata astfel:
-Parter: living+bucatarie open space, terasa acoperita 50mp, baie, birou si camera tehnica.
-Etaj: 3 dormitoare, 2 bai, 2 terase.
-Izolatie termica exterioara polistiren 15cm.
-Feronerie Salamander Brugmann 3 sticle.
-Incalzire in pardoseala pe toata suprafata, centrala termica pe gaz optional se poate opta pentru pompa caldura.
Casa se preda in stadiu de semifinat. Se pot discuta unele modificari in functie de stadiul de executie.
Termen finalizare: Iunie-iulie 2026.
-Suprafata teren: 620mp sau 1250.
Contracost se poate alipi inca o parcela de 620mp.
-Suprafata utila 172 mp + 90mp terase si este desfasurata astfel:
-Parter: living+bucatarie open space, terasa acoperita 50mp, baie, birou si camera tehnica.
-Etaj: 3 dormitoare, 2 bai, 2 terase.
-Izolatie termica exterioara polistiren 15cm.
-Feronerie Salamander Brugmann 3 sticle.
-Incalzire in pardoseala pe toata suprafata, centrala termica pe gaz optional se poate opta pentru pompa caldura.
Casa se preda in stadiu de semifinat. Se pot discuta unele modificari in functie de stadiul de executie.
Termen finalizare: Iunie-iulie 2026.
ID: 293780159
Contactează vânzătorul
xxx xxx xxx