Reactualizat azi la 19:29
Ozon Tower - Apartament 3 camere - Presale
175 000 €
Firma
Compartimentare: Decomandat
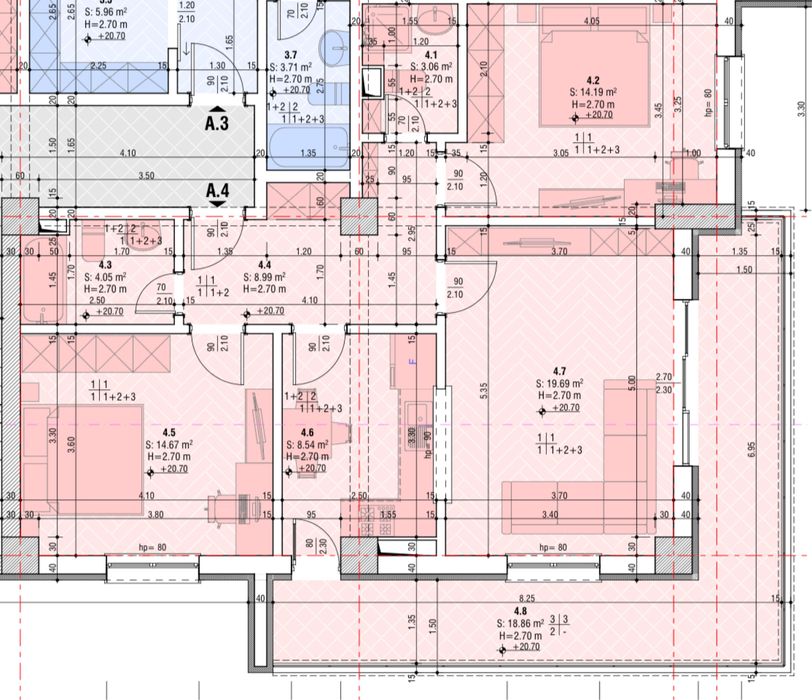
Suprafata utila: 95 m²
An constructie: Dupa 2000
Etaj: 5
Descriere
Ozon Tower: strada Morilor 2.
Preț cu avans de 45% - 163.000 euro
Preț cu avans de 25% - 175.000 euro
Suprafața construită totală: 111.3 mp.
Suprafața utila totală: 95.1 mp.
Apartamentul se predă finisat la alb.
Locul de parcare exterior: 7.500 euro.
Locul de parcare subteran: 12.500 euro.
Prețurile includ TVA ul de 21%.
Unicitate prin design și calitate:
Clădirea se remarcă prin fațada ventilată și tâmplăria din aluminiu de ultimă generație, elemente care îi conferă un aspect modern, durabilitate și eficiență energetică. Aceste detalii constructive fac din acest imobil unul unic pe piața imobiliară din Râmnicu Vâlcea.
Ozon Tower – Rafinament urban, fără compromisuri.
Descoperă un concept imobiliar exclusivist, situat în inima orașului, unde arhitectura spectaculoasă, panorama amplă și atenția la detalii conturează un stil de viață superior.
Localizare excepțională:
Amplasat într-una dintre cele mai centrale zone ale orașului – între strada Morilor și râul Olănești – Ozon Tower oferă acces facil către Calea lui Traian, fiind în imediata apropiere a parcurilor, grădinițelor și tuturor facilităților esențiale. Priveliștea panoramică începe chiar de la primul etaj, oferind o deschidere rar întâlnită în peisajul urban.
Design arhitectural remarcabil:
Imobilul, cu regim de înălțime D+P+8 și etaj 9 retras, se distinge prin linii arhitecturale moderne și o prezență impunătoare. Fiecare detaliu a fost conceput pentru a îmbina estetica cu funcționalitatea.
Spații generoase și finisaje de top:
Apartamentele impresionează prin suprafețele ample, compartimentările inteligente și terasele spectaculoase. Finisajele se predau „la alb”, oferind libertatea personalizării, iar încălzirea în pardoseală asigură un confort termic superior și o estetică impecabilă a spațiului interior.
Dotări și facilități premium:
Sisteme inteligente pentru controlul locuinței, spații comune amenajate cu eleganță și locuri de parcare subterane – totul gândit pentru un stil de viață modern, sigur și confortabil.
⸻
Ozon Tower nu este doar un imobil. Este o investiție în stilul tău de viață.
Un spațiu creat pentru cei care caută mai mult decât funcționalitate – pentru cei care prețuiesc detaliile, liniștea, lumina și echilibrul.
Aici, eleganța se simte în fiecare metru pătrat.
Preț cu avans de 45% - 163.000 euro
Preț cu avans de 25% - 175.000 euro
Suprafața construită totală: 111.3 mp.
Suprafața utila totală: 95.1 mp.
Apartamentul se predă finisat la alb.
Locul de parcare exterior: 7.500 euro.
Locul de parcare subteran: 12.500 euro.
Prețurile includ TVA ul de 21%.
Unicitate prin design și calitate:
Clădirea se remarcă prin fațada ventilată și tâmplăria din aluminiu de ultimă generație, elemente care îi conferă un aspect modern, durabilitate și eficiență energetică. Aceste detalii constructive fac din acest imobil unul unic pe piața imobiliară din Râmnicu Vâlcea.
Ozon Tower – Rafinament urban, fără compromisuri.
Descoperă un concept imobiliar exclusivist, situat în inima orașului, unde arhitectura spectaculoasă, panorama amplă și atenția la detalii conturează un stil de viață superior.
Localizare excepțională:
Amplasat într-una dintre cele mai centrale zone ale orașului – între strada Morilor și râul Olănești – Ozon Tower oferă acces facil către Calea lui Traian, fiind în imediata apropiere a parcurilor, grădinițelor și tuturor facilităților esențiale. Priveliștea panoramică începe chiar de la primul etaj, oferind o deschidere rar întâlnită în peisajul urban.
Design arhitectural remarcabil:
Imobilul, cu regim de înălțime D+P+8 și etaj 9 retras, se distinge prin linii arhitecturale moderne și o prezență impunătoare. Fiecare detaliu a fost conceput pentru a îmbina estetica cu funcționalitatea.
Spații generoase și finisaje de top:
Apartamentele impresionează prin suprafețele ample, compartimentările inteligente și terasele spectaculoase. Finisajele se predau „la alb”, oferind libertatea personalizării, iar încălzirea în pardoseală asigură un confort termic superior și o estetică impecabilă a spațiului interior.
Dotări și facilități premium:
Sisteme inteligente pentru controlul locuinței, spații comune amenajate cu eleganță și locuri de parcare subterane – totul gândit pentru un stil de viață modern, sigur și confortabil.
⸻
Ozon Tower nu este doar un imobil. Este o investiție în stilul tău de viață.
Un spațiu creat pentru cei care caută mai mult decât funcționalitate – pentru cei care prețuiesc detaliile, liniștea, lumina și echilibrul.
Aici, eleganța se simte în fiecare metru pătrat.
ID: 292976281
Contactează vânzătorul
xxx xxx xxx
Localitate
Ramnicu Valcea
Valcea