Postat 16 februarie 2026
Mini Penthouse 2 Camere 2 bai – 84 mp, Înălțime 3,6 m, Militari
124 500 €
Persoana fizica
Compartimentare: Decomandat
Suprafata utila: 84 m²
An constructie: Dupa 2000
Etaj: 5
Descriere
Imobiliul este localizat pe Str. Apeductului nr. 1E, Complex La Cittadella Garden – la granița cu Sector 6, București si in momentul de fata este inchiriat.
Detalii proprietate:
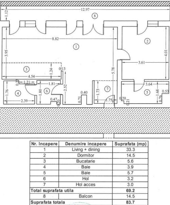
- Suprafață totală: 83,7 mp
- Suprafață utilă interioară: 69,2 mp
- Balcon/terasa: 14,5 mp
- Compartimentare eficientă: 2 camere spațioase care se pot transforma fara problema in 3 camere.
- Doua grupuri sanitare
- Etaj 5 din 5, într-un bloc cu lift
- Înălțime interioară spectaculoasă de 3,6 m – atmosferă de loft/penthouse, cu lumină naturală amplă
- Ferestre mari si inalte
- Centrală proprie – eficiență și control termic
- Orientare panoramică – vedere neobstrucționată catre oras
Stare apartament:
- Nou
- Finisat complet, nemobilat – pregătit pentru amenajare după preferințele tale
- Ideal pentru a fi personalizat în stil modern, minimalist sau tip loft
Complex & Vecinătăți:
- Ansamblu rezidențial modern, securizat, cu Easybox în incintă
- Stație STB – 150 m
- Mega Image – 250 m, La Doi Pași – 100 m
- Militari Shopping Center – 2 km
- Plaza România – 4 km
- Acces facil către centura Capitalei, autostrada A1 și Sector 6
Avantaje cheie:
- Înălțime 3,6 m – raritate pe piața imobiliară
- Bloc nou, cu lift – construcție recentă
- Ideal pentru rezidență, birou sau investiție în închiriere
- Apartament luminos, spațios, personalizabil
- Zonă liniștită, urbană, în expansiune – aproape de oraș, dar ferită de agitația acestuia
Pentru detalii suplimentare sau vizionare, va rog sa ma contactati.
Multumesc!
Detalii proprietate:
- Suprafață totală: 83,7 mp
- Suprafață utilă interioară: 69,2 mp
- Balcon/terasa: 14,5 mp
- Compartimentare eficientă: 2 camere spațioase care se pot transforma fara problema in 3 camere.
- Doua grupuri sanitare
- Etaj 5 din 5, într-un bloc cu lift
- Înălțime interioară spectaculoasă de 3,6 m – atmosferă de loft/penthouse, cu lumină naturală amplă
- Ferestre mari si inalte
- Centrală proprie – eficiență și control termic
- Orientare panoramică – vedere neobstrucționată catre oras
Stare apartament:
- Nou
- Finisat complet, nemobilat – pregătit pentru amenajare după preferințele tale
- Ideal pentru a fi personalizat în stil modern, minimalist sau tip loft
Complex & Vecinătăți:
- Ansamblu rezidențial modern, securizat, cu Easybox în incintă
- Stație STB – 150 m
- Mega Image – 250 m, La Doi Pași – 100 m
- Militari Shopping Center – 2 km
- Plaza România – 4 km
- Acces facil către centura Capitalei, autostrada A1 și Sector 6
Avantaje cheie:
- Înălțime 3,6 m – raritate pe piața imobiliară
- Bloc nou, cu lift – construcție recentă
- Ideal pentru rezidență, birou sau investiție în închiriere
- Apartament luminos, spațios, personalizabil
- Zonă liniștită, urbană, în expansiune – aproape de oraș, dar ferită de agitația acestuia
Pentru detalii suplimentare sau vizionare, va rog sa ma contactati.
Multumesc!
ID: 288523956
Contactează vânzătorul
xxx xxx xxx
Localitate
Bucuresti, Sectorul 6
Bucuresti - Ilfov