Postat 11 martie 2026
La cheie | Planul 2 | Apartament 3 camere | 105mp | B12520
290 000 €
Firma
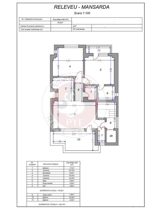
Suprafata utila: 79 m²
An constructie: Dupa 2000
Etaj: 3
Descriere
Vanzare Apartament 3 camere..
Pret: 290.000 Euro..
Zona: Calea Mosilor - Obor, Bucuresti.
ID oferta: PYF018B12520.
Detalii proprietate:
Un apartament unic, intr o zona extrem de valoroasa si centrala, a Bucurestiului, cautata atat de familii cat si de investitori, liniste, central, facilitatii nenumerate, toate la cativa pasi!
Detalii proprietate:
Tip locuinta: Apartamente
Tip operatiune: vanzare
Numar camere: 3 camere (2 dormitoare)
Suprafata utila: 79 mp
Suprafata totala: 105 mp
Etaj: 3 3 ETAJUL 3 ESTE MANSARDA
Compartimentare: semidecomandat
Confort: 1
An constructie : 2010
An renovare : 2025
Tip imobil: bloc mixt
Incalzire : Incalzire prin pardoseala
Bai: 2
Balcoane: 1 (4 mp)
Terase: 1 (15mp)
Bucatarii: 1 (da, mobilata, utilata, inchisa )
Mobilare : Complet modern
Podele: parchet, gresie, marmura, granit | Pereti: faianta, lavabil, marmura | Ferestre: pvc
Stare generala: Stare excelenta
Usa intrare: metal
Vedere: mixta
Destinatie: locuinta, birou, locuinta birou
Acces rapid la mijloace de transport in comun:
-Statia de metrou: (M1) Metrou Obor-500m, imobil-statie,
-autobuze: [66, 79***********35, N108-300m, 101, 143, 330, 335, N10-460m, 409, 409B, 411, 412, 413, 417, 4167, 168, 168B-530m, imobil-statie],
-tramvaie: [21,-300m, 1, 10 - 500m, imobil-statie]
In apropiere:
-Piata Obor, Auchan, Annabela, Kaufland, Mega Image, Berezka, SuperMercato, Halal Macelarie Arabeasca, Al Taiba, Froo, August;
-Gradinita Iepurasul Cel Istet, Gradinita Magnolia nr. 133, Gradinita Livada cu Copii, Gradinita Don Castor, Kindi Montessori, Gradinita Nemo, Gradinita Little Learners;
-Scoala Gimnaziala Sfantul Silivestru, Scoala Numarul 26, Scoala Gimnaziala Nr. 307, Scoala Gimnaziala Nr. 71, Gimnaziul Monterra-scoala privata;
-Liceul Teoretic Dr. Mioara Mincu, Colegiul National Bilingv George Cosbuc, Liceul Teoretic Ady Endre, Colegiul National Iulia Hasdeu, Colegiul National Miahi Viteazu, Colegiul Economic AD Xenopol, Colegiul Tehnologic Ion IC Bratianu;
-Parcul Obor, Parcul Pasari, Veranda Mall, Complex Obor, Bucur Obor, Foisorul De Foc;
Parcare: posibilitate in strada (1 loc)
Apartamente pe palier: 1
Siguranta: interfon - video interfon, lift - lift
Izolatii: exterior, interior
Agent responsabil: Robert T.
Important de stiut:
Vizionarile se realizeaza in baza unui contract de prestari servicii, semnat intre client si agentie. Este necesara prezentarea unui act de identitate. Neprezentarea acestuia poate duce la anularea sau neprogramarea vizionarii.
Se percepe comision din partea cumparatorului conform politicii Pyf Real Estate
Din cauza numarului mare de oferte si a fluctuatiei pietei imobiliare informatiile din oferta pot suferi modificari atat in sens apreciativ, cat si in sens depreciativ, de asemenea, este posibil sa nu mai fie de actualitate la momentul prezentarii. Pentru clarificarea acestor aspecte va rugam solicitati actualizarea ofertei ofertelor dorite!
Alege PYF REAL ESTATE - partenerul tau de incredere in imobiliare.
Transforma visul tau în realitate - contacteaza-ne acum!
Anunt relevant pentru cautari in Calea Mosilor, Bucur Obor, Obor, Iancului, Ferdinand, Bulevardul Ferdinand, investitie, zona centrala.
Pret: 290.000 Euro..
Zona: Calea Mosilor - Obor, Bucuresti.
ID oferta: PYF018B12520.
Detalii proprietate:
Un apartament unic, intr o zona extrem de valoroasa si centrala, a Bucurestiului, cautata atat de familii cat si de investitori, liniste, central, facilitatii nenumerate, toate la cativa pasi!
Detalii proprietate:
Tip locuinta: Apartamente
Tip operatiune: vanzare
Numar camere: 3 camere (2 dormitoare)
Suprafata utila: 79 mp
Suprafata totala: 105 mp
Etaj: 3 3 ETAJUL 3 ESTE MANSARDA
Compartimentare: semidecomandat
Confort: 1
An constructie : 2010
An renovare : 2025
Tip imobil: bloc mixt
Incalzire : Incalzire prin pardoseala
Bai: 2
Balcoane: 1 (4 mp)
Terase: 1 (15mp)
Bucatarii: 1 (da, mobilata, utilata, inchisa )
Mobilare : Complet modern
Podele: parchet, gresie, marmura, granit | Pereti: faianta, lavabil, marmura | Ferestre: pvc
Stare generala: Stare excelenta
Usa intrare: metal
Vedere: mixta
Destinatie: locuinta, birou, locuinta birou
Acces rapid la mijloace de transport in comun:
-Statia de metrou: (M1) Metrou Obor-500m, imobil-statie,
-autobuze: [66, 79***********35, N108-300m, 101, 143, 330, 335, N10-460m, 409, 409B, 411, 412, 413, 417, 4167, 168, 168B-530m, imobil-statie],
-tramvaie: [21,-300m, 1, 10 - 500m, imobil-statie]
In apropiere:
-Piata Obor, Auchan, Annabela, Kaufland, Mega Image, Berezka, SuperMercato, Halal Macelarie Arabeasca, Al Taiba, Froo, August;
-Gradinita Iepurasul Cel Istet, Gradinita Magnolia nr. 133, Gradinita Livada cu Copii, Gradinita Don Castor, Kindi Montessori, Gradinita Nemo, Gradinita Little Learners;
-Scoala Gimnaziala Sfantul Silivestru, Scoala Numarul 26, Scoala Gimnaziala Nr. 307, Scoala Gimnaziala Nr. 71, Gimnaziul Monterra-scoala privata;
-Liceul Teoretic Dr. Mioara Mincu, Colegiul National Bilingv George Cosbuc, Liceul Teoretic Ady Endre, Colegiul National Iulia Hasdeu, Colegiul National Miahi Viteazu, Colegiul Economic AD Xenopol, Colegiul Tehnologic Ion IC Bratianu;
-Parcul Obor, Parcul Pasari, Veranda Mall, Complex Obor, Bucur Obor, Foisorul De Foc;
Parcare: posibilitate in strada (1 loc)
Apartamente pe palier: 1
Siguranta: interfon - video interfon, lift - lift
Izolatii: exterior, interior
Agent responsabil: Robert T.
Important de stiut:
Vizionarile se realizeaza in baza unui contract de prestari servicii, semnat intre client si agentie. Este necesara prezentarea unui act de identitate. Neprezentarea acestuia poate duce la anularea sau neprogramarea vizionarii.
Se percepe comision din partea cumparatorului conform politicii Pyf Real Estate
Din cauza numarului mare de oferte si a fluctuatiei pietei imobiliare informatiile din oferta pot suferi modificari atat in sens apreciativ, cat si in sens depreciativ, de asemenea, este posibil sa nu mai fie de actualitate la momentul prezentarii. Pentru clarificarea acestor aspecte va rugam solicitati actualizarea ofertei ofertelor dorite!
Alege PYF REAL ESTATE - partenerul tau de incredere in imobiliare.
Transforma visul tau în realitate - contacteaza-ne acum!
Anunt relevant pentru cautari in Calea Mosilor, Bucur Obor, Obor, Iancului, Ferdinand, Bulevardul Ferdinand, investitie, zona centrala.
ID: 300910709
Contactează vânzătorul
Localitate
Bucuresti, Sectorul 2
Bucuresti - Ilfov