Postat 15 decembrie 2025
KIT casa moderna pe structura lemn din panouri SIP
9 998 €
Persoana fizica
Stare: Nou
Descriere
Casă Modernă din Panouri SIP – Design Contemporan, Eficiență Maximă, Construcție Rapidă!
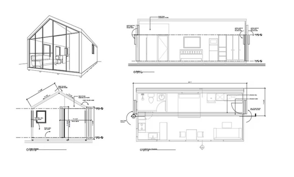
Descoperă o nouă generație de locuințe – casa din imagine este realizată pe structură SIP (Structural Insulated Panels), un sistem constructiv inovator care îmbină eleganța arhitecturală cu performanțele energetice excepționale și durabilitatea în timp.
Ce îți oferim?
Kit complet de structură prefabricată din panouri SIP pentru o casă modernă, cu design contemporan, terasă generoasă, fațadă cu finisaje premium (piatră naturală, lemn și sticlă), acoperiș în două ape și balcon integrat.
Specificații generale:
Suprafață utilă: aprox. 90-100 mp
Compartimentare propusă: living cu bucătărie open space, 2 dormitoare, baie, hol, spațiu tehnic și terasă
Etaj mansardat cu balcon
Structură completă din panouri SIP de grosime 174 mm pentru pereți exteriori și 236 mm pentru acoperiș
Panouri: OSB 18 mm – EPS 150 mm – OSB 18 mm (densitate EPS 100 kg/m³)
Posibilitate de izolație suplimentară cu vată bazaltică la exterior și finisaj de tip fațadă ventilată
Ce include kitul structural?
Panouri SIP prefabricate, decupate conform proiectului
Schițe de montaj și consultanță tehnică
Elemente de îmbinare (spline, șuruburi de prindere, adeziv)
Opțional: fundație pe șuruburi metalice (contra cost)
Avantajele construcției cu panouri SIP:
Timp scurt de montaj – structura se poate ridica în doar câteva zile
Costuri controlate – reducere semnificativă la manoperă și pierderi minime de material
Performanță energetică ridicată – coeficient de transfer termic scăzut, ideal pentru case pasive
Confort termic și fonic – izolație superioară, temperatură constantă în interior
Rezistență structurală ridicată – panourile SIP sunt testate la sarcini mari și condiții climatice extreme
Design arhitectural modern – libertate totală de configurare a compartimentării
Ecologic și sustenabil – materiale reciclabile, impact redus asupra mediului
Utilizări multiple:
Casă permanentă
Casă de vacanță
Studio/birou rezidențial
Spațiu de închiriat (Airbnb)
Cabane turistice sau glamping
Servicii suplimentare disponibile:
Transport KIT CASA panouri în orice zonă a țării
Asistență tehnică pe șantier
Consultanță pentru obținerea autorizațiilor
Posibilitate execuție la cheie prin echipe colaboratoare
Materiale premium, testate:
Lucrăm doar cu panouri SIP de calitate superioară, produse în România, certificate conform standardelor europene. Fiecare element este prelucrat cu precizie CNC, pentru o montare rapidă, fără improvizații.
Cui se adresează această ofertă?
Dacă ești în căutarea unei soluții rapide, durabile și eficiente pentru o casă modernă, fără compromisuri în privința calității, atunci această structură din panouri SIP este alegerea ideală.
Preț estimativ pentru KIT structură SIP: în funcție de suprafață, grosimea panourilor și finisajele alese – contactează-ne pentru ofertă personalizată!
Contact direct: Suntem disponibili pentru orice întrebare, schiță personalizată sau ofertă adaptată nevoilor tale. Trimite mesaj direct sau sună acum pentru mai multe detalii.
Livrare în toată țara | Suport tehnic inclus | Construcție ecologică și durabilă
Construiește mai inteligent, mai eficient și mai rapid cu panouri SIP – viitorul este acum!
Descoperă o nouă generație de locuințe – casa din imagine este realizată pe structură SIP (Structural Insulated Panels), un sistem constructiv inovator care îmbină eleganța arhitecturală cu performanțele energetice excepționale și durabilitatea în timp.
Ce îți oferim?
Kit complet de structură prefabricată din panouri SIP pentru o casă modernă, cu design contemporan, terasă generoasă, fațadă cu finisaje premium (piatră naturală, lemn și sticlă), acoperiș în două ape și balcon integrat.
Specificații generale:
Suprafață utilă: aprox. 90-100 mp
Compartimentare propusă: living cu bucătărie open space, 2 dormitoare, baie, hol, spațiu tehnic și terasă
Etaj mansardat cu balcon
Structură completă din panouri SIP de grosime 174 mm pentru pereți exteriori și 236 mm pentru acoperiș
Panouri: OSB 18 mm – EPS 150 mm – OSB 18 mm (densitate EPS 100 kg/m³)
Posibilitate de izolație suplimentară cu vată bazaltică la exterior și finisaj de tip fațadă ventilată
Ce include kitul structural?
Panouri SIP prefabricate, decupate conform proiectului
Schițe de montaj și consultanță tehnică
Elemente de îmbinare (spline, șuruburi de prindere, adeziv)
Opțional: fundație pe șuruburi metalice (contra cost)
Avantajele construcției cu panouri SIP:
Timp scurt de montaj – structura se poate ridica în doar câteva zile
Costuri controlate – reducere semnificativă la manoperă și pierderi minime de material
Performanță energetică ridicată – coeficient de transfer termic scăzut, ideal pentru case pasive
Confort termic și fonic – izolație superioară, temperatură constantă în interior
Rezistență structurală ridicată – panourile SIP sunt testate la sarcini mari și condiții climatice extreme
Design arhitectural modern – libertate totală de configurare a compartimentării
Ecologic și sustenabil – materiale reciclabile, impact redus asupra mediului
Utilizări multiple:
Casă permanentă
Casă de vacanță
Studio/birou rezidențial
Spațiu de închiriat (Airbnb)
Cabane turistice sau glamping
Servicii suplimentare disponibile:
Transport KIT CASA panouri în orice zonă a țării
Asistență tehnică pe șantier
Consultanță pentru obținerea autorizațiilor
Posibilitate execuție la cheie prin echipe colaboratoare
Materiale premium, testate:
Lucrăm doar cu panouri SIP de calitate superioară, produse în România, certificate conform standardelor europene. Fiecare element este prelucrat cu precizie CNC, pentru o montare rapidă, fără improvizații.
Cui se adresează această ofertă?
Dacă ești în căutarea unei soluții rapide, durabile și eficiente pentru o casă modernă, fără compromisuri în privința calității, atunci această structură din panouri SIP este alegerea ideală.
Preț estimativ pentru KIT structură SIP: în funcție de suprafață, grosimea panourilor și finisajele alese – contactează-ne pentru ofertă personalizată!
Contact direct: Suntem disponibili pentru orice întrebare, schiță personalizată sau ofertă adaptată nevoilor tale. Trimite mesaj direct sau sună acum pentru mai multe detalii.
Livrare în toată țara | Suport tehnic inclus | Construcție ecologică și durabilă
Construiește mai inteligent, mai eficient și mai rapid cu panouri SIP – viitorul este acum!
ID: 287407542
Contactează vânzătorul
xxx xxx xxx