Postat 16 decembrie 2025
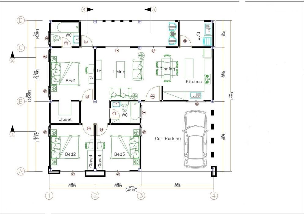
Kit casa lemn 132 mp
26 400 €
Firma
Stare: Nou
Descriere
Vindem structuri de case prefabricate din lemn Casele se executa in fabrica si se monteaza pe santier in 4-6 zile functie de suprafata casei.
Pretul din anunt se refera la Kit casă la rosu (fără finisaje) format din
pereti exteriori din lemn de brad uscat tratat dublu rândeluit 145x45 placat la exterior cu osb3 de 10mm iar la interior cu osb3 de 10mm.
pereti interiori din lemn uscat tratat dublu rândeluit 95x45 dublu placat cu osb3 .
acoperiș șarpantă în două ape cu căpriori din lemn uscat tratat dublu rândeluit placat cu osb 3 de 10mm.
tratament lemn :ignifugare,carii,mucegai,dăunători.
conectori metalici pt fixarea pereților , planșeului și șarpantei.Prețul include costul Kit-ului ,montajul și costul proiectului tehnic de execuție și rezistenta pt autorizația de construcție.Executăm casele numai la roșu fără finisaje la prețul din anunț.Pentru mai multe modele vizualizati si celalalte anunturi.Nu este inclus în preț transportul.Pentru montaje la distante mai mari de 50 km de Brasov beneficiarii vor asigura cazare pentru 4 persoane 4-5 zile.Pretul este in euro.
Pretul din anunt se refera la Kit casă la rosu (fără finisaje) format din
pereti exteriori din lemn de brad uscat tratat dublu rândeluit 145x45 placat la exterior cu osb3 de 10mm iar la interior cu osb3 de 10mm.
pereti interiori din lemn uscat tratat dublu rândeluit 95x45 dublu placat cu osb3 .
acoperiș șarpantă în două ape cu căpriori din lemn uscat tratat dublu rândeluit placat cu osb 3 de 10mm.
tratament lemn :ignifugare,carii,mucegai,dăunători.
conectori metalici pt fixarea pereților , planșeului și șarpantei.Prețul include costul Kit-ului ,montajul și costul proiectului tehnic de execuție și rezistenta pt autorizația de construcție.Executăm casele numai la roșu fără finisaje la prețul din anunț.Pentru mai multe modele vizualizati si celalalte anunturi.Nu este inclus în preț transportul.Pentru montaje la distante mai mari de 50 km de Brasov beneficiarii vor asigura cazare pentru 4 persoane 4-5 zile.Pretul este in euro.
ID: 249475610
Contactează vânzătorul
xxx xxx xxx