Postat 24 octombrie 2025
Închiriez/vand,spațiu alimentar 900 mp, producție, alimentare, depozit
9 €
Prețul e negociabil
Persoana fizica
Suprafata utila (m2): 900
Tip proprietate: Spatiu productie
Stare: Renovat
Anul constructiei: 1986
Numar locuri de parcare: 10
Infrastructura de baza: Acces pentru vehicule grele, Canalizare, Apa curenta
Alte facilitati: Gaze naturale, Zona administrativa
Siguranta: Receptie
Descriere
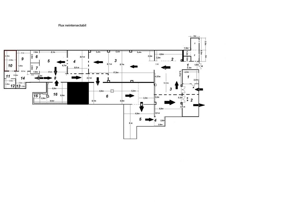
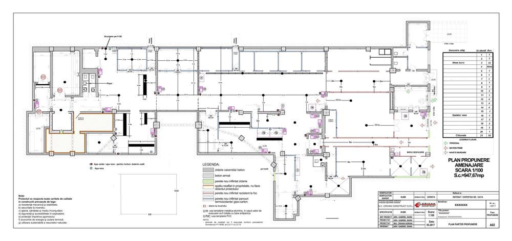
Închiriere/vanzare -Spațiu dedicat industriei alimentare – 900 mp, flux tehnologic continuu/neintersectabil, energie trifazică 300 kW, rampă camioane, utilități complete (apă, canalizare, gaz, ventilație).. Locație: Bd. Chișinău nr. 1, București.
Spațiul este proiectat conform tuturor reglementărilor sanitar-veterinare și HACCP putând fi utilizat în diverse producții alimentare cum ar fi : catering, ready-meal, patiserie/panificație, lactate, procesare carne, etc
Avantaje majore:
• spațiul a fost proiectat special pentru industria alimentară, cu respectarea normelor specifice;
• flux tehnologic continuu și neintersectabil, ideal pentru autorizare rapidă și activitate conformă;
• rampă proprie de încărcare/descărcare pentru camioane și autoutilitare.
Dotări și facilități:
• pardoseli antiderapante, pereți placați cu faianță lavabilă;
• tavan PVC igienic și iluminat industrial LED;
• spațiu compartimentat logic pentru flux de producție și/sau depozitare.
Utilități disponibile:
• branșament propriu de apă;
• canalizare;
• energie electrică trifazică (300 kW putere instalată);
• ventilație naturală;
• branșament de gaz.
Spațiul este pregătit pentru orice activitate alimentară sau catering: procesare carne, lactate, panificație, patiserie, semipreparate, produse congelate sau ready-meal.
Autorizare: fiecare chiriaș își poate obține autorizațiile în funcție de activitate, având infrastructura deja conformă.
Condiții de închiriere: contract minim 1 an.
Spațiul este proiectat conform tuturor reglementărilor sanitar-veterinare și HACCP putând fi utilizat în diverse producții alimentare cum ar fi : catering, ready-meal, patiserie/panificație, lactate, procesare carne, etc
Avantaje majore:
• spațiul a fost proiectat special pentru industria alimentară, cu respectarea normelor specifice;
• flux tehnologic continuu și neintersectabil, ideal pentru autorizare rapidă și activitate conformă;
• rampă proprie de încărcare/descărcare pentru camioane și autoutilitare.
Dotări și facilități:
• pardoseli antiderapante, pereți placați cu faianță lavabilă;
• tavan PVC igienic și iluminat industrial LED;
• spațiu compartimentat logic pentru flux de producție și/sau depozitare.
Utilități disponibile:
• branșament propriu de apă;
• canalizare;
• energie electrică trifazică (300 kW putere instalată);
• ventilație naturală;
• branșament de gaz.
Spațiul este pregătit pentru orice activitate alimentară sau catering: procesare carne, lactate, panificație, patiserie, semipreparate, produse congelate sau ready-meal.
Autorizare: fiecare chiriaș își poate obține autorizațiile în funcție de activitate, având infrastructura deja conformă.
Condiții de închiriere: contract minim 1 an.
ID: 293564722
Contactează vânzătorul
xxx xxx xxx
Localitate
Bucuresti, Sectorul 2
Bucuresti - Ilfov