Postat 13 octombrie 2025
Inchiriez spatiu comercial
5 €
Persoana fizica
Vanzare/Inchiriere: Inchiriere
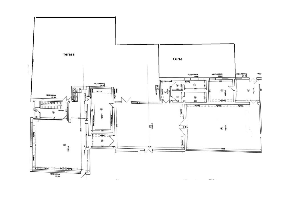
Suprafata utila: 780 m²
Descriere
Inchiriez spatiu comercial in ST=782mp compusa din 3 incaperi la parter, 1 la etaj, terasa, curte, 3 grupuri sanitare, spatiu de depozitare, birou, 2 scari interioare, holuri, pod inalt cu posibilitate de depozitare si 1 incapere unde a fuctionat o bucatarie. Ca dotari sunt:
- tenziune trifazica 380 cu o putere de 24kw
- gaze cu 3 focuri intr-o incapere si 2 centrale termice
- 2 aer conditionat de 55000 btu si 2 de 24000 btu
- la etaj jaluzele automate comandate din telecomanda sau din telefon
- la etaj si la parter gemurile superioare sunt cu deschidere electrica
- la etal gemurile se deschid gen evantai
- la parter geamurile sunt osciloculisante
- la parter sistem de ventilatie cu 2 sensuri
- la toalete sistem de ventilatie si iluminat pe senzori de miscare
Pretul este pe mp și exista posibilitatea de cumpărare la 1200 euro pe mp
- tenziune trifazica 380 cu o putere de 24kw
- gaze cu 3 focuri intr-o incapere si 2 centrale termice
- 2 aer conditionat de 55000 btu si 2 de 24000 btu
- la etaj jaluzele automate comandate din telecomanda sau din telefon
- la etaj si la parter gemurile superioare sunt cu deschidere electrica
- la etal gemurile se deschid gen evantai
- la parter geamurile sunt osciloculisante
- la parter sistem de ventilatie cu 2 sensuri
- la toalete sistem de ventilatie si iluminat pe senzori de miscare
Pretul este pe mp și exista posibilitatea de cumpărare la 1200 euro pe mp
ID: 292432227
Contactează vânzătorul
xxx xxx xxx
Localitate
Medgidia
Constanta