Postat 27 decembrie 2025
Inchiriez hala 600mp in NOJORID
2 500 €
Firma
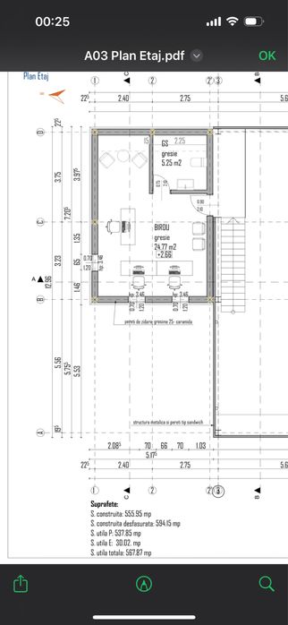
Suprafata construita (m2): 600
Suprafata utila (m2): 600
Suprafata teren (m2): 3 000
Suprafata zona administrativa (m2): 80
Inaltime utila (m): 6
Stare: Nou
Anul constructiei: 2025
Siguranta: Gard, Supraveghere video
Descriere
Locatia halei se afla pe drumul care merge de la Nojorid spre Livada de Bihor!
Această hală de închiriat are o suprafață utilă de 600 mp și o înălțime utilă de 6,5 m. Clădirea este nouă, construită în 2025, și dispune de un teren generos de 3000 mp. Hala este dotată cu sistem de supraveghere video pentru siguranța ta.
Locația este ideală pentru activități comerciale sau industriale. Este situata la doar 6 km de Aeroportul Din Oradea. Terenul este plat, iar suprafața exterioară este in intregime asfaltata, oferind un mediu de lucru eficient. Accesul este facil, ceea ce îți va permite să îți desfășori activitatea fără probleme.
Nu rata ocazia de a închiria această hală modernă. Contactează-ne pentru a programa o vizionare!
Pretul este de 2500€ + tva /luna
Această hală de închiriat are o suprafață utilă de 600 mp și o înălțime utilă de 6,5 m. Clădirea este nouă, construită în 2025, și dispune de un teren generos de 3000 mp. Hala este dotată cu sistem de supraveghere video pentru siguranța ta.
Locația este ideală pentru activități comerciale sau industriale. Este situata la doar 6 km de Aeroportul Din Oradea. Terenul este plat, iar suprafața exterioară este in intregime asfaltata, oferind un mediu de lucru eficient. Accesul este facil, ceea ce îți va permite să îți desfășori activitatea fără probleme.
Nu rata ocazia de a închiria această hală modernă. Contactează-ne pentru a programa o vizionare!
Pretul este de 2500€ + tva /luna
ID: 294578715
Contactează vânzătorul
xxx xxx xxx
Localitate
Livada de Bihor
Bihor