Postat 01 martie 2026
Inchiriez apt. 2 camere (in renovare) catre firma - parter - 420 Euro
420 €
Persoana fizica
Compartimentare: Semidecomandat
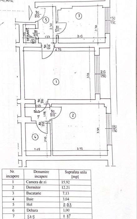
Suprafata utila: 45 m²
An constructie: 1977 – 1990
Etaj: Parter
Descriere
ATENTIE:
Apartamentul este în curs de renovare.
Se închiriază exclusiv către firme (sediu social / punct de lucru / activitate de birou).
Public anunțul din timp pentru a oferi firmelor interesate posibilitatea de a transmite eventuale preferințe privind amenajarea finală.
Pozele sunt orientative și nu reflectă stadiul actual al lucrărilor.
Termen estimat finalizare renovare: mai 2025 (posibil mai devreme).
Detalii apartament:
- localizat langa Scoala Centrala Campina
- 2 camere
- 45 mp
- semidecomandat
- parter
- centrala termica proprie
- tamplarie termopan noua
- bloc recent anvelopat si renovat
Se predă nemobilat, cu mobilier de bucătărie nou inclus.
Renovare completă în curs:
- instalație electrică complet nouă
- baie complet refacuta
- bucatarie noua
- usi noi
Prima inchiriere dupa renovare completa.
Apartamentul este în curs de renovare.
Se închiriază exclusiv către firme (sediu social / punct de lucru / activitate de birou).
Public anunțul din timp pentru a oferi firmelor interesate posibilitatea de a transmite eventuale preferințe privind amenajarea finală.
Pozele sunt orientative și nu reflectă stadiul actual al lucrărilor.
Termen estimat finalizare renovare: mai 2025 (posibil mai devreme).
Detalii apartament:
- localizat langa Scoala Centrala Campina
- 2 camere
- 45 mp
- semidecomandat
- parter
- centrala termica proprie
- tamplarie termopan noua
- bloc recent anvelopat si renovat
Se predă nemobilat, cu mobilier de bucătărie nou inclus.
Renovare completă în curs:
- instalație electrică complet nouă
- baie complet refacuta
- bucatarie noua
- usi noi
Prima inchiriere dupa renovare completa.
ID: 300190845
Contactează vânzătorul
xxx xxx xxx
Localitate
Campina
Prahova