Postat Azi la 10:49
Hala industriala
158 000 €
Persoana fizica
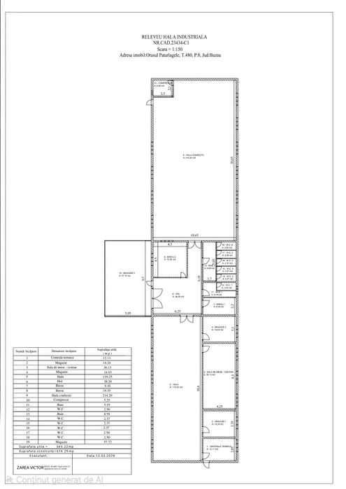
Suprafata construita (m2): 616
Suprafata utila (m2): 565
Suprafata teren (m2): 2 100
Tip proprietate: Spatiu productie, Distributie, Depozit
Numar locuri de parcare: 10
Infrastructura de baza: Acces pentru vehicule grele, Apa curenta
Alte facilitati: Baie privata, Zona administrativa
Siguranta: Supraveghere 24/7, Supraveghere video
Descriere
Se oferă spre vânzare hală industrială complet funcțională, pregătită pentru activități de confecții – croitorie, situată în orașul Pătârlagele.
Proprietatea are o suprafață utilă de 565 mp și este amplasată pe un teren intravilan concesionat de 2.100 mp.
Hala este compartimentată eficient și cuprinde:
Două săli de lucru dotate cu camere pentru compresoare,
Două birouri,
Grupuri sanitare și vestiare pentru personal.
Clădirea este dotată cu sistem de supraveghere video 24/7 și în prezent generează venituri din chirii, fiind o investiție ideală pentru cei care doresc o proprietate cu randament imediat.
Proprietatea are o suprafață utilă de 565 mp și este amplasată pe un teren intravilan concesionat de 2.100 mp.
Hala este compartimentată eficient și cuprinde:
Două săli de lucru dotate cu camere pentru compresoare,
Două birouri,
Grupuri sanitare și vestiare pentru personal.
Clădirea este dotată cu sistem de supraveghere video 24/7 și în prezent generează venituri din chirii, fiind o investiție ideală pentru cei care doresc o proprietate cu randament imediat.
ID: 294815299
Contactează vânzătorul
xxx xxx xxx