Postat 26 februarie 2026
Garsonieră ultracentrală, etaj 2/7, balcon închis - AI Cuza
49 900 €
Prețul e negociabil
Persoana fizica
Compartimentare: Decomandat
Suprafata utila: 26 m²
An constructie: 1977 – 1990
Etaj: 2
Descriere
Vând garsonieră ultracentrală la etaj 2/7, cu vedere exclusiv pe spate spre Str. Victoriei (liniște, ferită de bulevard).
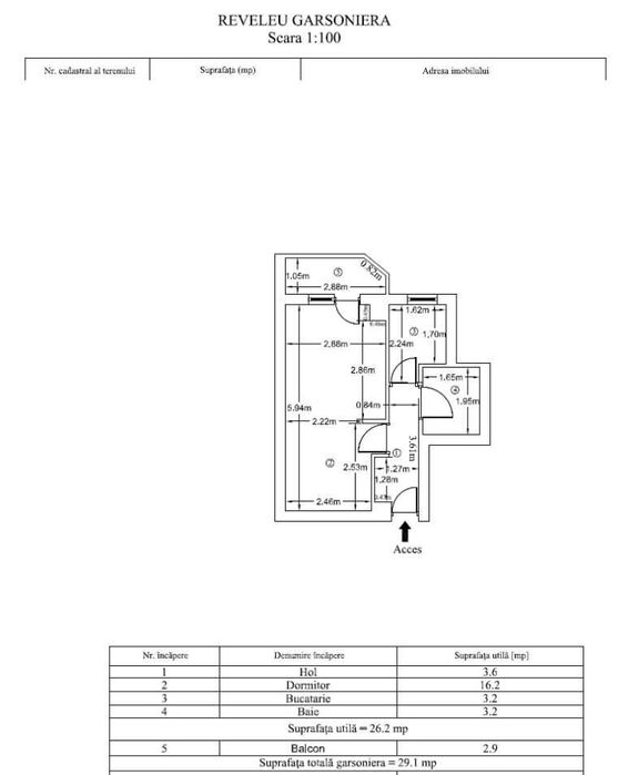
Suprafață: 26,2 mp utili + balcon închis 2,9 mp.
Compartimentare: hol 3,6 mp, cameră 16,2 mp, bucătărie 3,2 mp, baie 3,2 mp.
Bloc anvelopat, lift schimbat, termopane, parchet lemn. Gaz – debranșament făcut (centrala este veche și necesită înlocuire).
Garsoniera se vinde fără renovare – este ideală pentru amenajare după propriul gust sau pentru investiție.
Atașez releveul + poză din balcon spre Str. Victoriei (se vede tamplaria din termopan).
Preț: 49.900 € (usor negociabil).
Vizionare cu programare. Mesaj pentru detalii.
Suprafață: 26,2 mp utili + balcon închis 2,9 mp.
Compartimentare: hol 3,6 mp, cameră 16,2 mp, bucătărie 3,2 mp, baie 3,2 mp.
Bloc anvelopat, lift schimbat, termopane, parchet lemn. Gaz – debranșament făcut (centrala este veche și necesită înlocuire).
Garsoniera se vinde fără renovare – este ideală pentru amenajare după propriul gust sau pentru investiție.
Atașez releveul + poză din balcon spre Str. Victoriei (se vede tamplaria din termopan).
Preț: 49.900 € (usor negociabil).
Vizionare cu programare. Mesaj pentru detalii.
ID: 300061255
Contactează vânzătorul