Postat 12 septembrie 2025
Garaj spațios de 140mp + teren 310mp, la doar 30m de Liberty Mall
330 000 €
Prețul e negociabil
Persoana fizica
Suprafata utila: 310 m²
Extravilan / intravilan: Intravilan
Descriere
Garaj spațios de 140mp + teren 310mp, la doar 30m de Liberty Mall
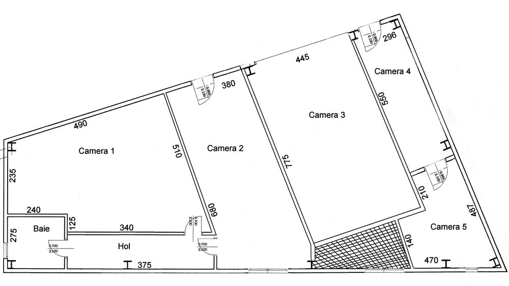
Vând imobil multifuncțional cu o suprafață construită de aproximativ 140 mp, compus din 5 camere + grup sanitar, situat pe un teren de 310 mp.
Localizare excelentă la numai 30 de metri de Liberty Mall, stradal - Soseaua Progresului
Construcție modernă (2020) realizată din panouri sandwich (grosime 10 cm) pe structură metalică, ideală pentru depozit, atelier, birouri, garaj auto sau de ce nu o casa de locuit.
Constructia s-a realizat cu autorizatie de construire, in conformitate cu cerintele legale, drept urmare detin proces verbal la terminarea lucrarilor + certificat de atestare a constructiei.
Dotări și facilități:
Poartă auto mare (5metri) cu telecomandă
Curte complet pavată
Pardoseală integrală epoxidică rezistentă și ușor de întreținut
Grup sanitar cu 2 toalete
2 unități de aer condiționat independente
Sistem de alarmă instalat
Racordat la utilități: apă curentă, electricitate 220V și 380V ( putere instalata 30KWh)
Catarg pentru steag ideal pentru afișare publicitară
Ideal pentru activități comerciale, service auto, birouri, showroom, depozit sau garaj privat.
Pentru detalii și vizionare, nu ezita să mă contactezi!
Vând imobil multifuncțional cu o suprafață construită de aproximativ 140 mp, compus din 5 camere + grup sanitar, situat pe un teren de 310 mp.
Localizare excelentă la numai 30 de metri de Liberty Mall, stradal - Soseaua Progresului
Construcție modernă (2020) realizată din panouri sandwich (grosime 10 cm) pe structură metalică, ideală pentru depozit, atelier, birouri, garaj auto sau de ce nu o casa de locuit.
Constructia s-a realizat cu autorizatie de construire, in conformitate cu cerintele legale, drept urmare detin proces verbal la terminarea lucrarilor + certificat de atestare a constructiei.
Dotări și facilități:
Poartă auto mare (5metri) cu telecomandă
Curte complet pavată
Pardoseală integrală epoxidică rezistentă și ușor de întreținut
Grup sanitar cu 2 toalete
2 unități de aer condiționat independente
Sistem de alarmă instalat
Racordat la utilități: apă curentă, electricitate 220V și 380V ( putere instalata 30KWh)
Catarg pentru steag ideal pentru afișare publicitară
Ideal pentru activități comerciale, service auto, birouri, showroom, depozit sau garaj privat.
Pentru detalii și vizionare, nu ezita să mă contactezi!
ID: 292540050
Contactează vânzătorul
xxx xxx xxx
Localitate
Bucuresti, Sectorul 5
Bucuresti - Ilfov