Reactualizat la 08 martie 2026
ESTORIA - 3 CAM. - cel mai fain ap + loc parcare subteran
205 000 €
Persoana fizica
Compartimentare: Semidecomandat
Suprafata utila: 86 m²
An constructie: Dupa 2000
Etaj: 3
Descriere
Comision 0 pentru cumparator!
Cel mai frumos tip de apartament. Cea mai dorita compartimentare. Nu mai exista altul similar la vanzare in acest moment. Nu comparati apartamente cu alta compartimentare, fara terasa si fara loc de parcare si fara boxa subterane. E normal ca acelea sa fie mai ieftine. Cine doreste confortul maxim din acest complex, ar fi bine sa se uite la acest apartament.
Acest apartament cu 3 camere are o suprafata utila de 86 mp (din care 14 mp are este terasa semi-acoperita). Este semidecomandat si situat la etajul 3. Beneficiaza de doua bai, bucatarie inchisa, iar finisajele sunt de inalta calitate. Livingul este luminos, avand acces la o terasa superba de 14.5mp.
Cateva detalii tehnice:
- pereti din caramida
- incalzire prin pardoseala
- centrala termica proprie
Locatia este ideala, aproape de metrou (6 minute de mers pe jos, cf Google Maps, vezi poza 5), iesire spre A2, parc si zone comerciale: IKEA, Auchan, Metro, Kaufland, Leroy Merlin, Mobexpert, Altex, Dedeman, Jumbo, Regina Maria, etc..
Transportul public este usor accesibil, cu statii de autobuz si metrou in apropiere.
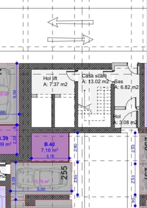
In plus, primesti si loc de parcare subteran, foarte aproape de lift.
Detalii cesiune:
- avans 55.000 EUR (TVA inclus), la momentul semnarii cesiunii
- 124.000 EUR + TVA la momentul predarii apartamentului (adica 150.000EUR cu TVA inclus).
Termen predare apartament: decembrie 2026 (plus 3 luni de gratie: martie 2027). Nu sta pe ganduri. Nu vor scadea preturile la aceste apartamente noi si foarte bine executate. Ba dimpotrivă, cu cât lucrările de vor apropia de final, cu atât mai mult vor creste prețurile.
Nu rata ocazia de a achizitiona acest apartament! Contacteaza-ma pentru mai multe detalii.
Cel mai frumos tip de apartament. Cea mai dorita compartimentare. Nu mai exista altul similar la vanzare in acest moment. Nu comparati apartamente cu alta compartimentare, fara terasa si fara loc de parcare si fara boxa subterane. E normal ca acelea sa fie mai ieftine. Cine doreste confortul maxim din acest complex, ar fi bine sa se uite la acest apartament.
Acest apartament cu 3 camere are o suprafata utila de 86 mp (din care 14 mp are este terasa semi-acoperita). Este semidecomandat si situat la etajul 3. Beneficiaza de doua bai, bucatarie inchisa, iar finisajele sunt de inalta calitate. Livingul este luminos, avand acces la o terasa superba de 14.5mp.
Cateva detalii tehnice:
- pereti din caramida
- incalzire prin pardoseala
- centrala termica proprie
Locatia este ideala, aproape de metrou (6 minute de mers pe jos, cf Google Maps, vezi poza 5), iesire spre A2, parc si zone comerciale: IKEA, Auchan, Metro, Kaufland, Leroy Merlin, Mobexpert, Altex, Dedeman, Jumbo, Regina Maria, etc..
Transportul public este usor accesibil, cu statii de autobuz si metrou in apropiere.
In plus, primesti si loc de parcare subteran, foarte aproape de lift.
Detalii cesiune:
- avans 55.000 EUR (TVA inclus), la momentul semnarii cesiunii
- 124.000 EUR + TVA la momentul predarii apartamentului (adica 150.000EUR cu TVA inclus).
Termen predare apartament: decembrie 2026 (plus 3 luni de gratie: martie 2027). Nu sta pe ganduri. Nu vor scadea preturile la aceste apartamente noi si foarte bine executate. Ba dimpotrivă, cu cât lucrările de vor apropia de final, cu atât mai mult vor creste prețurile.
Nu rata ocazia de a achizitiona acest apartament! Contacteaza-ma pentru mai multe detalii.
ID: 300019658
Contactează vânzătorul
xxx xxx xxx
Localitate
Catelu
Bucuresti - Ilfov