Postat 06 aprilie 2026
DUPLEX TIP CASĂ INDIVIDUALĂ – Giarmata Vii - fara comision
205 000 €
Persoana fizica
Camere: 4 sau mai multe
Suprafata utila: 117 m²
Locuinta mobilata / utilata: Nemobilata / neutilata
Descriere
Vă propunem spre vânzare o casă tip duplex separată prin cameră tehnică (NU perete comun de locuit) – confortul unei case individuale, cu costuri optimizate.
Locație: Giarmata-Vii – zonă centrală, sat liniștit, case noi în jur
Acces la 50 m de asfalt
Suprafață & teren
- Suprafață construită: 138 mp
- Suprafață utilă: 117 mp
- Teren: 202 mp
- Regim de înălțime: P + E
- Terasă cu pergolă
- loc de parcare propriu
Construcție solidă
- Structură: beton armat
- Zidărie: CEMACOM EVOCERAMIC 24 LM
- Finalizare: Dec 2026
Utilități complete
- Curent
- Apă
- Canalizare
- Gaz
- CATV
- Internet + fibră optică
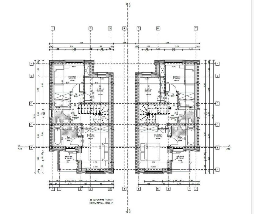
Compartimentare ideală pentru familie
PARTER
- Hol acces
- Living spațios
- Birou / dormitor
- Bucătărie închisă
- Baie cu duș
- Cameră tehnică + spațiu depozitare
- Terasă
ETAJ
- Dormitor matrimonial cu baie proprie + balcon
- 2 dormitoare
- Baie cu cadă
- Hol
- Acces pod pentru depozitare
Dotări & finisaje
- Încălzire în pardoseală
- Centrală proprie pe gaz
- Ferestre PVC cu geam tripan
- Gresie Italia + parchet 10 mm
- Casă predată nemobilată
PREȚ: 205.000 €
Se acceptă credit bancar
Pentru detalii și vizionare, trimite mesaj sau sună (zero 7 doi 7 doi 0 șase 8 zero 6)
O casă modernă, compartimentată inteligent, într-o zonă în plină dezvoltare.
Locație: Giarmata-Vii – zonă centrală, sat liniștit, case noi în jur
Acces la 50 m de asfalt
Suprafață & teren
- Suprafață construită: 138 mp
- Suprafață utilă: 117 mp
- Teren: 202 mp
- Regim de înălțime: P + E
- Terasă cu pergolă
- loc de parcare propriu
Construcție solidă
- Structură: beton armat
- Zidărie: CEMACOM EVOCERAMIC 24 LM
- Finalizare: Dec 2026
Utilități complete
- Curent
- Apă
- Canalizare
- Gaz
- CATV
- Internet + fibră optică
Compartimentare ideală pentru familie
PARTER
- Hol acces
- Living spațios
- Birou / dormitor
- Bucătărie închisă
- Baie cu duș
- Cameră tehnică + spațiu depozitare
- Terasă
ETAJ
- Dormitor matrimonial cu baie proprie + balcon
- 2 dormitoare
- Baie cu cadă
- Hol
- Acces pod pentru depozitare
Dotări & finisaje
- Încălzire în pardoseală
- Centrală proprie pe gaz
- Ferestre PVC cu geam tripan
- Gresie Italia + parchet 10 mm
- Casă predată nemobilată
PREȚ: 205.000 €
Se acceptă credit bancar
Pentru detalii și vizionare, trimite mesaj sau sună (zero 7 doi 7 doi 0 șase 8 zero 6)
O casă modernă, compartimentată inteligent, într-o zonă în plină dezvoltare.
ID: 300150730
Contactează vânzătorul
xxx xxx xxx
Localitate
Giarmata-VII
Timis