Postat 12 octombrie 2025
Duplex P+1, 4 camere, Cartierul Primăverii
195 000 €
Persoana fizica
Camere: 4 sau mai multe
Suprafata utila: 101 m²
Locuinta mobilata / utilata: Partial
Descriere
Vând jumătate de duplex P+1, amplasat într-o zonă liniștită și aerisită, cu străzi asfaltate și toate utilitățile disponibile.
Casa are o suprafață utilă de 101 mp util, fiind construită pe un teren de 288 mp și oferă un spațiu echilibrat, funcțional și confortabil pentru o familie modernă.
Locuința dispune de 4 camere și 2 băi, având o suprafață totală desfășurată de 145 mp, ce include o terasă de 25 mp și un balcon de 6 mp.
În fața casei este amenajat un spațiu verde și o platformă din beton amprentat destinată parcării a 3 mașini.
Construcția este realizată integral din cărămidă, cu ziduri duble și izolație fonică și termică între unități. Fiecare locuință are carte funciară individuală pe întreaga proprietate.
Dispune de pod spațios, ideal pentru depozitare sau amenajare suplimentară.
Accesul către Timișoara este rapid și facil, pe drum asfaltat, la doar 8 km de oraș.
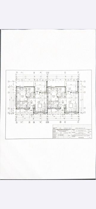
Compartimentare
PARTER
Terasă acces 5,48 mp
Hol 6,61 mp
Baie 5,22 mp
Bucătărie separată 11,65 mp
Cămară 2,65 mp
Living 21,45 mp
Terasă 11,60 mp
Scară din beton armat, acces etaj
ETAJ
Hol 3,96 mp
Dormitor 1 16,31 mp
Dormitor 2 15,01 mp
Dormitor 3 11,16 mp
Baie 7,05 mp
Balcon 5,87 mp
Utilități
Apă AQUATIM SA
Canalizare menajeră AQUATIM SA
Canalizare pluvială
Energie electrică subterană ENEL DISTRIBUȚIE SA
Gaz
Internet fibră optică
Iluminat stradal
Străzi asfaltate (lățime 12 m), trotuare și spații verzi pe ambele părți
Avantaje
Zonă rezidențială nouă, aerisită
Acces facil către oraș
Compartimentare practică și echilibrată
Două terase și balcon
Toate utilitățile racordate
Proprietar, fără comision!
Casa are o suprafață utilă de 101 mp util, fiind construită pe un teren de 288 mp și oferă un spațiu echilibrat, funcțional și confortabil pentru o familie modernă.
Locuința dispune de 4 camere și 2 băi, având o suprafață totală desfășurată de 145 mp, ce include o terasă de 25 mp și un balcon de 6 mp.
În fața casei este amenajat un spațiu verde și o platformă din beton amprentat destinată parcării a 3 mașini.
Construcția este realizată integral din cărămidă, cu ziduri duble și izolație fonică și termică între unități. Fiecare locuință are carte funciară individuală pe întreaga proprietate.
Dispune de pod spațios, ideal pentru depozitare sau amenajare suplimentară.
Accesul către Timișoara este rapid și facil, pe drum asfaltat, la doar 8 km de oraș.
Compartimentare
PARTER
Terasă acces 5,48 mp
Hol 6,61 mp
Baie 5,22 mp
Bucătărie separată 11,65 mp
Cămară 2,65 mp
Living 21,45 mp
Terasă 11,60 mp
Scară din beton armat, acces etaj
ETAJ
Hol 3,96 mp
Dormitor 1 16,31 mp
Dormitor 2 15,01 mp
Dormitor 3 11,16 mp
Baie 7,05 mp
Balcon 5,87 mp
Utilități
Apă AQUATIM SA
Canalizare menajeră AQUATIM SA
Canalizare pluvială
Energie electrică subterană ENEL DISTRIBUȚIE SA
Gaz
Internet fibră optică
Iluminat stradal
Străzi asfaltate (lățime 12 m), trotuare și spații verzi pe ambele părți
Avantaje
Zonă rezidențială nouă, aerisită
Acces facil către oraș
Compartimentare practică și echilibrată
Două terase și balcon
Toate utilitățile racordate
Proprietar, fără comision!
ID: 294059929
Contactează vânzătorul
xxx xxx xxx