Postat 24 decembrie 2025
Doar 10 parcele intravilane Nojorid Leș | Preț etapă 1 – de la 7.150€
7 150 €
Persoana fizica
Suprafata utila: 275 m²
Extravilan / intravilan: Intravilan
Descriere
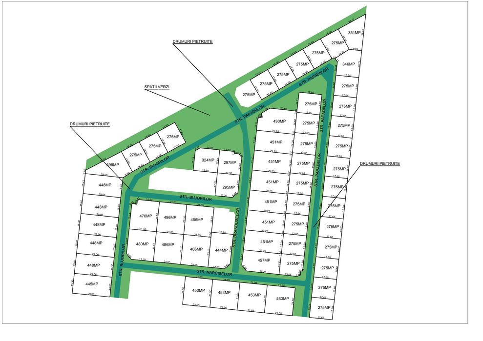
Vând parcele intravilane în Nojorid, sat Leș, str. Bujorilor, Păpădiilor, Brândușelor și Narciselor.
Proiect cu 60 de parcele, dar în această etapă sunt disponibile doar 10.
Urmează introducerea curentului electric – prețurile vor crește.
Cine cumpără acum, cumpără la preț de etapă 1.
Detalii:
• Suprafață: 275 – 486 mp
• PUZ aprobat – zonă rezidențială
• Case construite în zonă
• Utilități (apă + curent) în proximitate
• Străzi largi, spațiu pentru parcare și zone verzi
• 15 min de Oradea
Preț:
De la 7.150 € / parcelă
(~26 €/mp, în funcție de suprafață)
Detalii și vizionări: 07********88
Proiect cu 60 de parcele, dar în această etapă sunt disponibile doar 10.
Urmează introducerea curentului electric – prețurile vor crește.
Cine cumpără acum, cumpără la preț de etapă 1.
Detalii:
• Suprafață: 275 – 486 mp
• PUZ aprobat – zonă rezidențială
• Case construite în zonă
• Utilități (apă + curent) în proximitate
• Străzi largi, spațiu pentru parcare și zone verzi
• 15 min de Oradea
Preț:
De la 7.150 € / parcelă
(~26 €/mp, în funcție de suprafață)
Detalii și vizionări: 07********88
ID: 290128213
Contactează vânzătorul
xxx xxx xxx
