Reactualizat la 28 februarie 2026
DIRECT PROPRIETAR | Ap. 2 camere Cortina North
152 000 €
Persoana fizica
Compartimentare: Decomandat
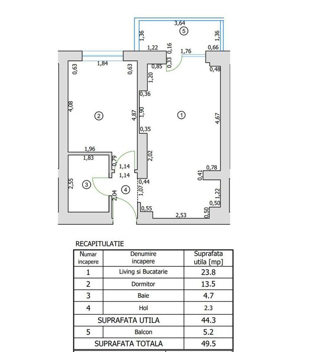
Suprafata utila: 50 m²
An constructie: Dupa 2000
Etaj: 3
Descriere
Apartament 2 camere în Cortina North – Fază 3, direct de la proprietar | 07******04
COMISION 0%
NU SE APLICA TVA - IMOBIL DETINUT DE PERSOANA FIZICA
PRETUL NU ESTE NEGOCIABIL
Dacă ești în căutarea unui apartament complet finalizat, cu un stil de viață premium și o locație de top în zona Aviației-Pipera, îți prezint această oportunitate unică: apartament 2 camere, tip 2K, situat în complexul exclusivist Cortina North, disponibil direct de la proprietar, fără niciun comision.
-Etaj 3 / Vedere deschisă către vilele din Pipera
Bucură-te zilnic de o priveliște liniștitoare și luminozitate naturală, greu de găsit în București. Fără zgomot, fără blocuri în față – doar liniște și spațiu.
-Suprafață construită: 61,11 mp | Suprafață utilă: 49.5 mp
Compartimentare ideală pentru un stil de viață modern:
Living spațios cu bucătărie open space
Dormitor confortabil, perfect pentru relaxare
Baie elegantă, finisată cu materiale premium
Balcon privat – ideal pentru cafeaua de dimineață sau un pahar de vin seara
Centru fitness complet echipat
Piscină interioară
Pista de alergare de 1,5 km în interiorul complexului
10.000 mp de spații verzi amenajate
Acces securizat 24/7
-Apartamentul este finalizat, în Faza 3
Achiziția se face prin contract de vanzare cumparare, simplu, rapid, direct cu mine, proprietarul. Nu implică costuri ascunse sau taxe suplimentare.
- Finisaje și dotări de calitate superioară:
Tâmplărie aluminiu Schuco cu geam tripan
Gresie și faianță Porcelanosa
Parchet triplustratificat de calitate premium
Centrală proprie Ariston
-Pentru mai multe detalii sau programarea unei vizionări, scrie-mi pe WhatsApp la 07********39.
Răspund prompt.
COMISION 0%
NU SE APLICA TVA - IMOBIL DETINUT DE PERSOANA FIZICA
PRETUL NU ESTE NEGOCIABIL
Dacă ești în căutarea unui apartament complet finalizat, cu un stil de viață premium și o locație de top în zona Aviației-Pipera, îți prezint această oportunitate unică: apartament 2 camere, tip 2K, situat în complexul exclusivist Cortina North, disponibil direct de la proprietar, fără niciun comision.
-Etaj 3 / Vedere deschisă către vilele din Pipera
Bucură-te zilnic de o priveliște liniștitoare și luminozitate naturală, greu de găsit în București. Fără zgomot, fără blocuri în față – doar liniște și spațiu.
-Suprafață construită: 61,11 mp | Suprafață utilă: 49.5 mp
Compartimentare ideală pentru un stil de viață modern:
Living spațios cu bucătărie open space
Dormitor confortabil, perfect pentru relaxare
Baie elegantă, finisată cu materiale premium
Balcon privat – ideal pentru cafeaua de dimineață sau un pahar de vin seara
Centru fitness complet echipat
Piscină interioară
Pista de alergare de 1,5 km în interiorul complexului
10.000 mp de spații verzi amenajate
Acces securizat 24/7
-Apartamentul este finalizat, în Faza 3
Achiziția se face prin contract de vanzare cumparare, simplu, rapid, direct cu mine, proprietarul. Nu implică costuri ascunse sau taxe suplimentare.
- Finisaje și dotări de calitate superioară:
Tâmplărie aluminiu Schuco cu geam tripan
Gresie și faianță Porcelanosa
Parchet triplustratificat de calitate premium
Centrală proprie Ariston
-Pentru mai multe detalii sau programarea unei vizionări, scrie-mi pe WhatsApp la 07********39.
Răspund prompt.
ID: 283477849
Contactează vânzătorul
xxx xxx xxx
Localitate
Ilfov, Baneasa
Bucuresti - Ilfov