Postat 16 octombrie 2025
De Vanzare: Hala 4 Nivele
1 000 000 €
Firma
Stare: Utilizat
Descriere
Se vinde clădire tip hală cu suprafață utilă generoasă, ideală pentru producție, depozitare sau diverse activități comerciale.
Detalii imobil:
Suprafata teren: 1000 mp
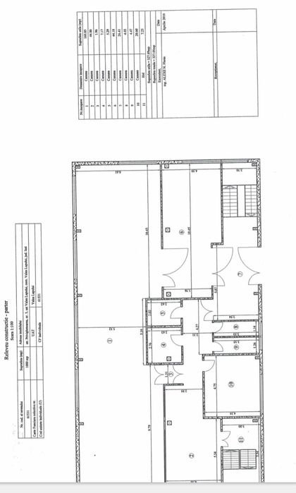
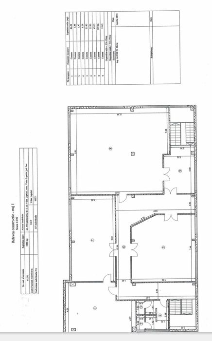
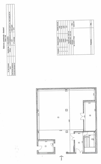
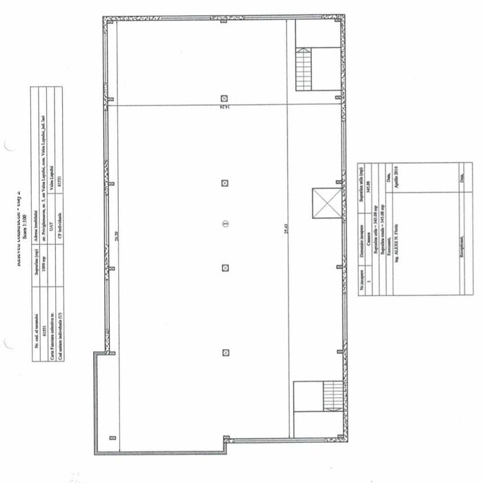
Suprafață utilă totală: 1.197,03 mp
Compartimentare:
Parter: 327,05 mp
Etaj 1: 336,19 mp
Etaj 2: 345,08 mp
Demisol: 188,71 mp
Construcție solidă, potrivită pentru diverse domenii de activitate
Acces facil pentru aprovizionare și transport
Preț: 1.000.000 €
Pentru mai multe informații sau pentru programarea unei vizionări, vă rugăm să ne contactați!
Detalii imobil:
Suprafata teren: 1000 mp
Suprafață utilă totală: 1.197,03 mp
Compartimentare:
Parter: 327,05 mp
Etaj 1: 336,19 mp
Etaj 2: 345,08 mp
Demisol: 188,71 mp
Construcție solidă, potrivită pentru diverse domenii de activitate
Acces facil pentru aprovizionare și transport
Preț: 1.000.000 €
Pentru mai multe informații sau pentru programarea unei vizionări, vă rugăm să ne contactați!
ID: 283092431
Contactează vânzătorul
xxx xxx xxx