Postat 17 noiembrie 2025
De vanzare casa parter si mansarda moderna
148 000 €
Prețul e negociabil
Firma
Camere: 4 sau mai multe
Suprafata utila: 122 m²
Locuinta mobilata / utilata: Nemobilata / neutilata
Descriere
De vanzare casa parter si mansarda moderna cu camere luminoase si spatioase, perfecta pentru o familie tanara.
Casa este situata intr-un cartier nou si linistit din Agigea (cartier Moara), pe Str. Narciselor si beneficiaza de un teren cu suprafata totala de 362mp.
Locuinta are suprafata contruita parter de 92.5mp, suprafata contruita mansarda 67.81mp iar suprafata utila totala de 121.55mp. Este finalizata in anul 2025, cu materiale premium (polistiren sikatherm 10cm eps100, tamplarie pvc executata in fabrica adf cu profil salamander 76mm culoare gri-antracit cu geam tripan, tabla wetterbest zincata 0.5mm grosime, inclusiv pazie si sageac metalice).
Compartimentarea este alcatuita astfel:
- Parter – 1 dormitor copil sau birou (11.00mp), living cu bucatarie open-space (32.53mp), baie (6.12mp) si o terasa acoperita in spatele casei cu iesire din bucatarie (18.19mp) ce poate fi transformata in bucatarie.
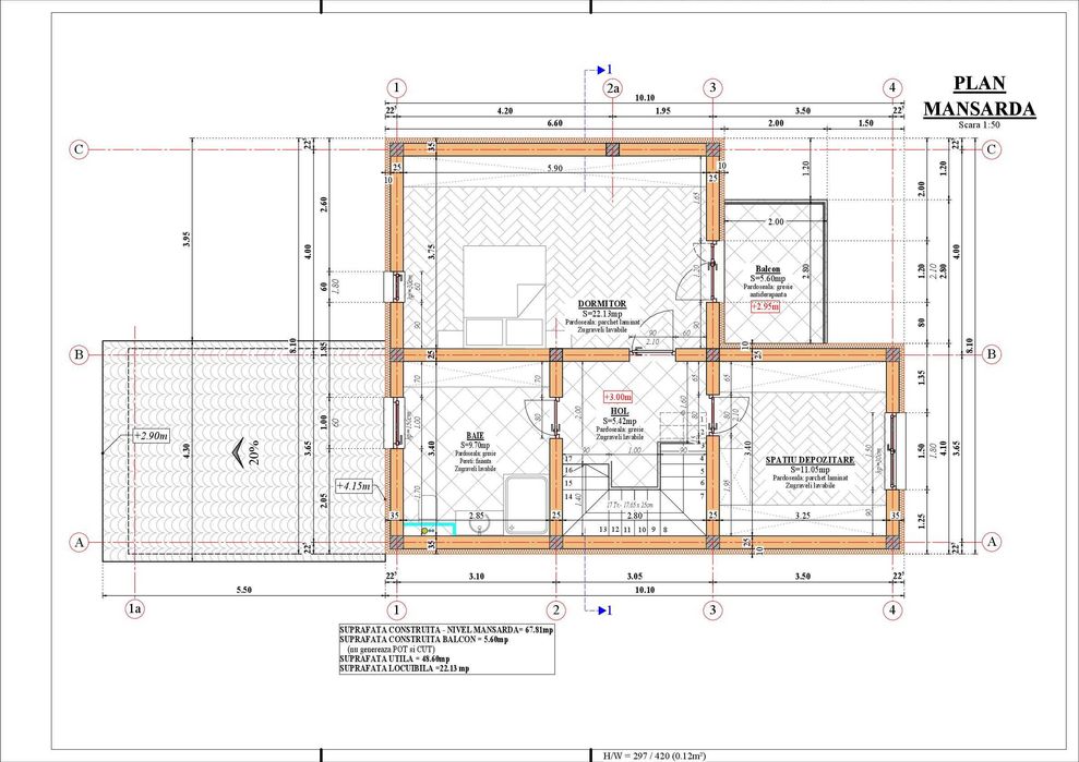
- Mansarda - un dormitor matrimonial generos cu spatii de depozitare (22.13mp) care are acces la balcon (5.60mp), un dormitor pt copii (11.05mp), o baie cu loc pentru spalatorie si uscatorie (9.70mp).
Casa este bransata la apa, canalizare si curent, iar bransamentul de gaz este facut in fata gardului, urmand a se monta doar contoarul si teava de gaz pana in casa.
Casa este situata intr-un cartier nou si linistit din Agigea (cartier Moara), pe Str. Narciselor si beneficiaza de un teren cu suprafata totala de 362mp.
Locuinta are suprafata contruita parter de 92.5mp, suprafata contruita mansarda 67.81mp iar suprafata utila totala de 121.55mp. Este finalizata in anul 2025, cu materiale premium (polistiren sikatherm 10cm eps100, tamplarie pvc executata in fabrica adf cu profil salamander 76mm culoare gri-antracit cu geam tripan, tabla wetterbest zincata 0.5mm grosime, inclusiv pazie si sageac metalice).
Compartimentarea este alcatuita astfel:
- Parter – 1 dormitor copil sau birou (11.00mp), living cu bucatarie open-space (32.53mp), baie (6.12mp) si o terasa acoperita in spatele casei cu iesire din bucatarie (18.19mp) ce poate fi transformata in bucatarie.
- Mansarda - un dormitor matrimonial generos cu spatii de depozitare (22.13mp) care are acces la balcon (5.60mp), un dormitor pt copii (11.05mp), o baie cu loc pentru spalatorie si uscatorie (9.70mp).
Casa este bransata la apa, canalizare si curent, iar bransamentul de gaz este facut in fata gardului, urmand a se monta doar contoarul si teava de gaz pana in casa.
ID: 295032069
Contactează vânzătorul
xxx xxx xxx
Localitate
Agigea
Constanta