Postat 03 noiembrie 2025
De vanzare Casa din Livada - Moara Vlasiei
320 000 €
Prețul e negociabil
Persoana fizica
Camere: 4 sau mai multe
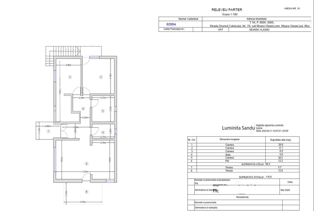
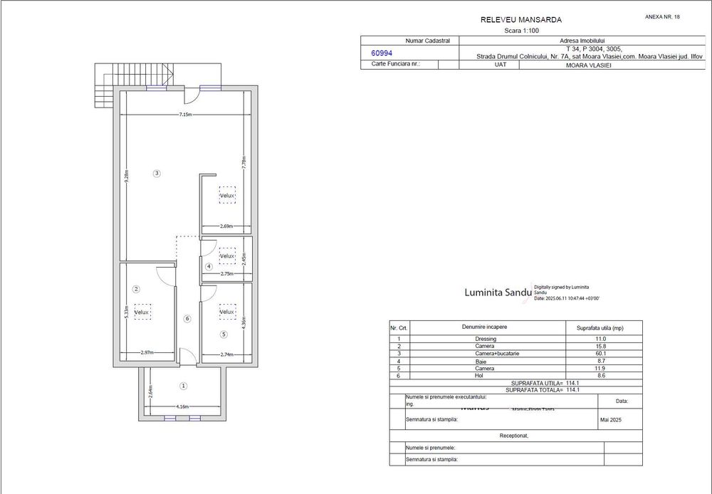
Suprafata utila: 230 m²
Locuinta mobilata / utilata: Partial
Descriere
Video Prezentare - puteti cere in mesaj privat
Casă Parter + Mansardă de vânzare
Moara Vlăsiei, Ilfov – Str. Drumul Colnicului 7A
Proprietate finalizată recent, situată într-o zonă liniștită, înconjurată de verdeață și livadă proprie.
Detalii construcție:
Regim: Parter + Mansardă
Structură: BCA
Geamuri: Tripan Salamander
Acoperiș: Țiglă metalică Bilka
Recepționată: Ianuarie 2025
Proiect realizat ca persoană fizică
Compartimentare funcțională:
2 livinguri
3 băi
2 bucătării
1 cameră tehnică
1 dressing
2 holuri de acces
Utilități și dotări:
Apă curentă
Canalizare
Curent electric + curent trifazic în camera tehnică și lângă parcare (pregătit pentru stație de încărcare auto electrică)
Gaze naturale
Centrală termică pe gaz
Acces auto cu porți automate
Teren și curte:
Curte generoasă
Livadă cu pomi fructiferi plantați
O locuință ideală pentru o familie care caută liniște, spațiu și confort, la doar câțiva kilometri de București.
Casă Parter + Mansardă de vânzare
Moara Vlăsiei, Ilfov – Str. Drumul Colnicului 7A
Proprietate finalizată recent, situată într-o zonă liniștită, înconjurată de verdeață și livadă proprie.
Detalii construcție:
Regim: Parter + Mansardă
Structură: BCA
Geamuri: Tripan Salamander
Acoperiș: Țiglă metalică Bilka
Recepționată: Ianuarie 2025
Proiect realizat ca persoană fizică
Compartimentare funcțională:
2 livinguri
3 băi
2 bucătării
1 cameră tehnică
1 dressing
2 holuri de acces
Utilități și dotări:
Apă curentă
Canalizare
Curent electric + curent trifazic în camera tehnică și lângă parcare (pregătit pentru stație de încărcare auto electrică)
Gaze naturale
Centrală termică pe gaz
Acces auto cu porți automate
Teren și curte:
Curte generoasă
Livadă cu pomi fructiferi plantați
O locuință ideală pentru o familie care caută liniște, spațiu și confort, la doar câțiva kilometri de București.
ID: 290220669
Contactează vânzătorul
xxx xxx xxx
Localitate
Moara Vlasiei
Bucuresti - Ilfov
