Postat 29 octombrie 2025
De închiriat spațiu pentru prestări servicii Darabani, jud. Botoșani
8 €
Prețul e negociabil
Persoana fizica
Vanzare/Inchiriere: Inchiriere
Suprafata utila: 182 m²
Descriere
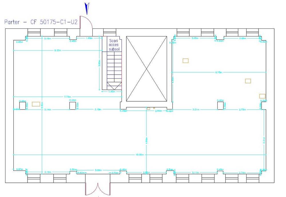
Se oferă spre închiriere spațiu pentru activități comerciale sau de prestări servicii, situat în orașul Darabani, str. 1 Decembrie nr. 111, bl. H4, parter.
Suprafață:
Parter: 151 mp
Subsol: 31 mp (cu acces direct din spațiu)
Spațiul este necompartimentat, conform releveului aferent, oferind posibilitatea de amenajare și compartimentare după nevoi.
Este proaspăt renovat (în curs de finalizare), astfel încât poate fi adaptat cerințelor viitorului chiriaș.
Utilități: curent trifazic, apă, canalizare.
- Tâmplărie tripan Salamander eficiență energetică și confort termic ridicat.
Acces atât din față, cât și din spate.
Se poate închiria:
- Integral (parter + subsol);
- Parțial, prin compartimentare în două spații, dintre care unul beneficiază de acces la subsol.
Ideal pentru activități comerciale, birouri, cabinet medical, salon sau alte servicii.
Suprafață:
Parter: 151 mp
Subsol: 31 mp (cu acces direct din spațiu)
Spațiul este necompartimentat, conform releveului aferent, oferind posibilitatea de amenajare și compartimentare după nevoi.
Este proaspăt renovat (în curs de finalizare), astfel încât poate fi adaptat cerințelor viitorului chiriaș.
Utilități: curent trifazic, apă, canalizare.
- Tâmplărie tripan Salamander eficiență energetică și confort termic ridicat.
Acces atât din față, cât și din spate.
Se poate închiria:
- Integral (parter + subsol);
- Parțial, prin compartimentare în două spații, dintre care unul beneficiază de acces la subsol.
Ideal pentru activități comerciale, birouri, cabinet medical, salon sau alte servicii.
ID: 294832587
Contactează vânzătorul
xxx xxx xxx
Localitate
Darabani
Botosani