Reactualizat la 23 martie 2026
Coworking, Spatiu de birou, Subinchiriere-6 min de la Selgros
3 300 lei
Persoana fizica
Vanzare/Inchiriere: Inchiriere
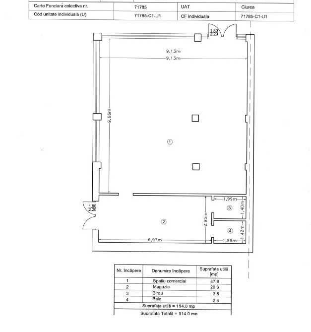
Suprafata utila: 114 m²
Descriere
Direct la persoana fizica, fara comision la agentie,
inchiriem spatiu comercial situat la 6 minute de magazinul Selgros Iasi, in Hlincea, cum urci spre Manastirea Cetatuia.
Spatiul are 114 mp, parcare proprie cu 5-7 locuri, 2 intrari, aer conditionat.
Spatiul poate fi inchiriat de mai multe persoane-ca si spatiu Coworking, sau subinchiriere.
Ne puteti contacta la: zero sapte opt sase opt sapte opt unu zero patru.
Multumim!
inchiriem spatiu comercial situat la 6 minute de magazinul Selgros Iasi, in Hlincea, cum urci spre Manastirea Cetatuia.
Spatiul are 114 mp, parcare proprie cu 5-7 locuri, 2 intrari, aer conditionat.
Spatiul poate fi inchiriat de mai multe persoane-ca si spatiu Coworking, sau subinchiriere.
Ne puteti contacta la: zero sapte opt sase opt sapte opt unu zero patru.
Multumim!
ID: 300665311
Contactează vânzătorul
xxx xxx xxx