Reactualizat la 19 aprilie 2026
Cladire OFFICE 360mp util | 421mp teren | ULTRACENTRAL | Iuliu Maniu
825 000 €
Firma
Vanzare/Inchiriere: Vanzare
Suprafata utila: 380 m²
Descriere
Cladire cu destinatie comerciala , situata in zona ultracentrala a orasului , pe Strada Iuliu Maniu , zona pietonala , la doar cateva minute de Piata Unirii , Bd. Eroilor , Magazinul SORA , Str. Memorandumului , fiind zona usor accesibila , pretabila pentru activitati office , birouri notariale , de avocatura , cabinete medicale fiind pretabil de asemenea si ca si spatii de cazare in regim hotelier datorita locatiei si a proximitatii fata de punctele centrale de interes!
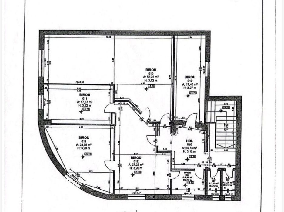
Suprafata utila a cladirii este de 360mp , iar desfășurat 394mp , este distribuita pe 2 niveluri , compartimentata in 8 incaperi independente si spatii anexe precum grupuri sanitare , camera tehnica , casa scării si spatii de depozitare!
Constructia este din cărămidă , izolata pe exterior cu polistiren de 10cm , dispune de incalzire cu centrala termica pe gaz , prin calorifere , sisteme de climatizare si aer condiționat , tamplarie PVC termopan , iar inaltimea interioara este de aproximativ 3,4m! Suprafata de teren aferent este de 421 mp, din care alei betonate de 104 mp si suprafete verzi de 125 mp, diferenta fiind ocupata de cladire.
Curtea interioara permite parcarea a minim 4 autovehicule!
Situatie juridica clara! Cod ofertă / ID: WST4062
Suprafata utila a cladirii este de 360mp , iar desfășurat 394mp , este distribuita pe 2 niveluri , compartimentata in 8 incaperi independente si spatii anexe precum grupuri sanitare , camera tehnica , casa scării si spatii de depozitare!
Constructia este din cărămidă , izolata pe exterior cu polistiren de 10cm , dispune de incalzire cu centrala termica pe gaz , prin calorifere , sisteme de climatizare si aer condiționat , tamplarie PVC termopan , iar inaltimea interioara este de aproximativ 3,4m! Suprafata de teren aferent este de 421 mp, din care alei betonate de 104 mp si suprafete verzi de 125 mp, diferenta fiind ocupata de cladire.
Curtea interioara permite parcarea a minim 4 autovehicule!
Situatie juridica clara! Cod ofertă / ID: WST4062
ID: 302442034
Contactează vânzătorul