Postat 05 martie 2026
Case cuplate, Parter/Etaj/Terasa,Comision 0%
267 000 €
Firma
Camere: 4 sau mai multe
Suprafata utila: 118 m²
Locuinta mobilata / utilata: Nemobilata / neutilata
Descriere
Proiectul ansamblului este conceput pentru case cuplate cu cinci unitati locative situate pe Calea Cisnădiei.
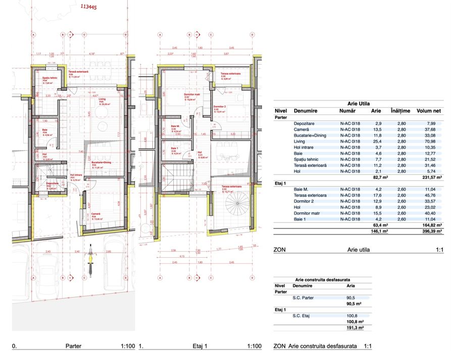
Suprafata utila este de 118 mp + 80mp de terasa.
In spatele casei este amenajata o grădină de 90mp iar in fata casei este amenajata o curte cu locuri de parcare de aproximativ 50mp.
Compartimentare la parter:
Sufragerie si bucatarie de 37mp, birou 13.5mp, baie 6.5mp, camera tehnica 5mp, debara/dressing 5mp
Compartimentare etaj 1:
Dormitor1 15mp, dormitor2 16mp, hol 8mp, baie 8mp, terasa 8mp.
Terasa acoperis imprejmuita cu balustrada sticla securizata 80mp unde se poate amenaja după preferință.
Casele sunt construite din caramida de 25 cm si termosistem de 15cm iar soclu cu termosistem extrudat de 10cm
Se vor preda la stadiul de finisat interior cu:
-Pompa căldură si incalzire in pardoseala pe intreaga suprafata;
-ferestre termopan cu tripan culoare antracit
-pereti gletuiti,zugrăvit, instalatii sanitare si obiecte.
- instalații electrice si corpuri montate
-uși interioare
-curtea imprejmuita si amenajari alee acces si parcari pavate.
Terasa închisă cu balustrada de sticla ,podeaua placata cu polisitren de 30cm densitatea Eps 200,turnata șapa de panta si hidroizolații cu EPDM, podeaua finisata cu podea Deck pe ploturi.
Casa are regim de inaltime P+E, front 8ml, iar accesul se face de pe un drum pavat. In curte exista posibilitatea de a parca 2 masini.
Comision 0%
Suprafata utila este de 118 mp + 80mp de terasa.
In spatele casei este amenajata o grădină de 90mp iar in fata casei este amenajata o curte cu locuri de parcare de aproximativ 50mp.
Compartimentare la parter:
Sufragerie si bucatarie de 37mp, birou 13.5mp, baie 6.5mp, camera tehnica 5mp, debara/dressing 5mp
Compartimentare etaj 1:
Dormitor1 15mp, dormitor2 16mp, hol 8mp, baie 8mp, terasa 8mp.
Terasa acoperis imprejmuita cu balustrada sticla securizata 80mp unde se poate amenaja după preferință.
Casele sunt construite din caramida de 25 cm si termosistem de 15cm iar soclu cu termosistem extrudat de 10cm
Se vor preda la stadiul de finisat interior cu:
-Pompa căldură si incalzire in pardoseala pe intreaga suprafata;
-ferestre termopan cu tripan culoare antracit
-pereti gletuiti,zugrăvit, instalatii sanitare si obiecte.
- instalații electrice si corpuri montate
-uși interioare
-curtea imprejmuita si amenajari alee acces si parcari pavate.
Terasa închisă cu balustrada de sticla ,podeaua placata cu polisitren de 30cm densitatea Eps 200,turnata șapa de panta si hidroizolații cu EPDM, podeaua finisata cu podea Deck pe ploturi.
Casa are regim de inaltime P+E, front 8ml, iar accesul se face de pe un drum pavat. In curte exista posibilitatea de a parca 2 masini.
Comision 0%
ID: 300421191
Contactează vânzătorul
xxx xxx xxx
