Postat 22 decembrie 2025
Casa/Vilă la Roșu, Sat Breazu, Comuna Rediu, Iași
160 000 €
Persoana fizica
Camere: 4 sau mai multe
Locuinta mobilata / utilata: Nemobilata / neutilata
Descriere
Se vinde casă la roșu executată pentru uz personal, dar din cauza unor probleme personale suntem nevoiți să renunțăm la proiect.
Se pot furniza fotografii detaliate din fiecare etapă, fișe stație betonare, beton-armat etc, toate fiind executate la cele mai înalte standarde, conform proiectului.
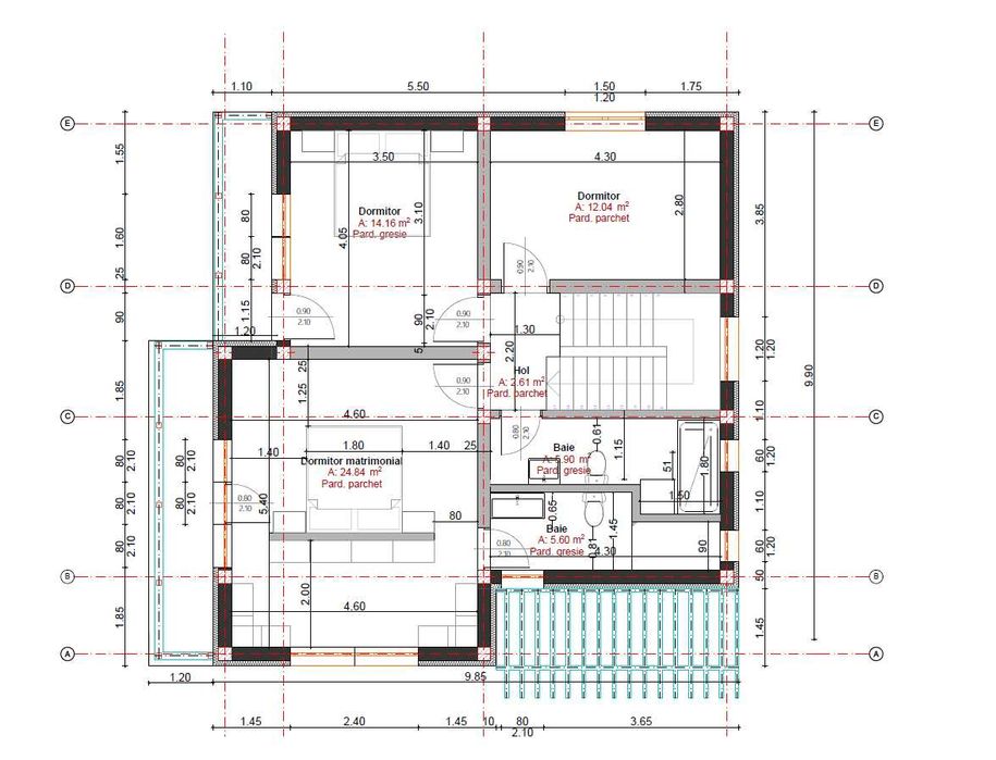
Suprafață desfășurată 184 mp, 92 pe nivel
Parter: Living, Bucătărie, Cameră Tehnică, Baie Serviuciu, Birou
Etaj: 3 Dormitoare, dintre care unul matrimonial. 2 băi, dintre care una comună pe hol și una pentru dormitorul matrimonial. Dormitorul matrimonial este separat de un perete ușor pentru dressing.
Acoperiș înalt în care s-ar mai putea organiza o cameră.
Apă prezentă pe parcelă. Gaz/electricitate/internet la poartă. Canalizare la 300 de metri în drumul județean.
Acces stradă privată cu barieră.
Casa se vinde cu două parcele de câte 500 mp + 156 mp cotă indiviză cale de acces (deci total 1312mp) - 190.000 EUR
sau se poate vinde cu o singură parcelă, deci 500 mp + 156 mp (656 mp) - 160.000 EUR
Se pot furniza fotografii detaliate din fiecare etapă, fișe stație betonare, beton-armat etc, toate fiind executate la cele mai înalte standarde, conform proiectului.
Suprafață desfășurată 184 mp, 92 pe nivel
Parter: Living, Bucătărie, Cameră Tehnică, Baie Serviuciu, Birou
Etaj: 3 Dormitoare, dintre care unul matrimonial. 2 băi, dintre care una comună pe hol și una pentru dormitorul matrimonial. Dormitorul matrimonial este separat de un perete ușor pentru dressing.
Acoperiș înalt în care s-ar mai putea organiza o cameră.
Apă prezentă pe parcelă. Gaz/electricitate/internet la poartă. Canalizare la 300 de metri în drumul județean.
Acces stradă privată cu barieră.
Casa se vinde cu două parcele de câte 500 mp + 156 mp cotă indiviză cale de acces (deci total 1312mp) - 190.000 EUR
sau se poate vinde cu o singură parcelă, deci 500 mp + 156 mp (656 mp) - 160.000 EUR
ID: 296447436
Contactează vânzătorul
xxx xxx xxx