Postat 17 octombrie 2025
Casa tip duplex 4 camera Valea Adanca
131 000 €
Prețul e negociabil
Persoana fizica
Camere: 4 sau mai multe
Suprafata utila: 131 m²
Descriere
Persoană fizică vând casă tip duplex.
Casa P+E cu 4 camere, 2 bai, cu suprafata de 131mp, beci de aproximativ 12mp, terasa inchisa 25mp, teren aferent 200mp, situata in zona de la capat CUG - Valea Adanca, cu vedere la Lacul Ezareni aflat la doar 200m de locuinta.
Locatia foarte buna a casei pozitionata intr-o zona dezvoltata, cu supermarket, farmacie, gradinita, scoala si mijloc de transport, toate aflandu-se pe o raza de maxim 500m, aduc un plus valoare ofertei acestei locuinte.
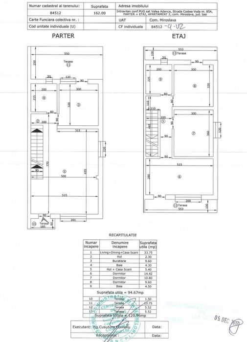
Compartimentare:
PARTER: - hol intrare, living+CS (33,8mp), bucatarie separata (9,6mp) cu iesire in terasa inchisa (25mp), baie cu dus (4,3mp),
ETAJ: - hol (5,4mp), dormitor 1 (14,4mp) cu iesire in balcon (5,5mp), dormitor 2 (10,8mp), dormitor 3 (9,6mp) cu iesire in balcon (5,5mp), baie cu cada (4,5mp), spatiu de depozitare in pod.
Detalii:
-constructie 2018 integral din caramida;
-izolatie exterioara polistiren 10cm;
-dubla izolatie pod, cu vata minerala la nivelul planseului si cu spuma poliuretanica pe astereala;
-tamplarie PVC tripan;
-terasa 25mp inchisa;
-beci 14mp sub terasa;
-centrala termica pe gaz;
-sistem fotovoltaic de 6kw;
-aer conditionat;
- Parcare amenajata pentru 2 autoturisme
-mobilata si utilata (optional).
Casa este racordata la toate utilitatile: apa+ canalizare ( ApaVital) , gaz, curent,, iluminat public.
PRET: 131.000euro
Se poate achizitiona si complet mobilata si utilata la pretul de 140.000euro
Imobilul se afla foarte aproape de Sos. Nicolina pe strada Costea Voda.
Proprietatea este intabulată, se acceptă atât plata cash, cât și credit.
Informații suplimentare: o7434o17575
Casa P+E cu 4 camere, 2 bai, cu suprafata de 131mp, beci de aproximativ 12mp, terasa inchisa 25mp, teren aferent 200mp, situata in zona de la capat CUG - Valea Adanca, cu vedere la Lacul Ezareni aflat la doar 200m de locuinta.
Locatia foarte buna a casei pozitionata intr-o zona dezvoltata, cu supermarket, farmacie, gradinita, scoala si mijloc de transport, toate aflandu-se pe o raza de maxim 500m, aduc un plus valoare ofertei acestei locuinte.
Compartimentare:
PARTER: - hol intrare, living+CS (33,8mp), bucatarie separata (9,6mp) cu iesire in terasa inchisa (25mp), baie cu dus (4,3mp),
ETAJ: - hol (5,4mp), dormitor 1 (14,4mp) cu iesire in balcon (5,5mp), dormitor 2 (10,8mp), dormitor 3 (9,6mp) cu iesire in balcon (5,5mp), baie cu cada (4,5mp), spatiu de depozitare in pod.
Detalii:
-constructie 2018 integral din caramida;
-izolatie exterioara polistiren 10cm;
-dubla izolatie pod, cu vata minerala la nivelul planseului si cu spuma poliuretanica pe astereala;
-tamplarie PVC tripan;
-terasa 25mp inchisa;
-beci 14mp sub terasa;
-centrala termica pe gaz;
-sistem fotovoltaic de 6kw;
-aer conditionat;
- Parcare amenajata pentru 2 autoturisme
-mobilata si utilata (optional).
Casa este racordata la toate utilitatile: apa+ canalizare ( ApaVital) , gaz, curent,, iluminat public.
PRET: 131.000euro
Se poate achizitiona si complet mobilata si utilata la pretul de 140.000euro
Imobilul se afla foarte aproape de Sos. Nicolina pe strada Costea Voda.
Proprietatea este intabulată, se acceptă atât plata cash, cât și credit.
Informații suplimentare: o7434o17575
ID: 292743747
Contactează vânzătorul
xxx xxx xxx
Localitate
Valea Adanca
Iasi