Reactualizat la 13 martie 2026
Casă spațioasă 206 mp + teren 1700 mp, zonă centrală Făgăraș
170 000 €
Persoana fizica
Camere: 4 sau mai multe
Suprafata utila: 153 m²
Locuinta mobilata / utilata: Nemobilata / neutilata
Descriere
Vând casă (proprietar privat) în Făgăraș, zona centrală, strada Oltului. Construită în 2007, 206 mp construiți, 153 Utili, fundație de 1,5 m, structura din cadre de beton, pereți din cărămidă, plăci din beton armat de 30 cm (inclusiv la acoperiș), cu posibilitate de mansardare. Casa nu a fost locuită și este la stadiu gri – instalația electrică, sanitară și de încălzire sunt realizate, geamuri termopan montate.
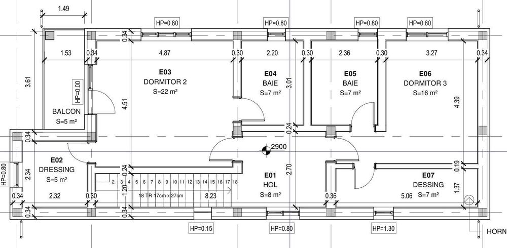
Compartimentare practică:
Parter – living mare, bucătărie separată (se poate face open space), dormitor, baie, spațiu tehnic, cămară și terasă de acces.
Etaj – 2 dormitoare cu băi proprii și dressing generos fiecare, un dormitor dispune de terasă spre strada.
Anexa/ Garaj - 35 mp
Teren 1700 mp, curtea se întinde până la canalul de la digul Oltului, cu potențial investițional (posibilitate parcelare pentru loturi de case). Utilități pe teren: apă, canalizare, curent. Casă intabulată, cu toate actele la zi.
Priveliște superbă: în spate spre dealurile Galati- Șona–Șoarș, iar în față spre Munții Făgărașului.
Avantajul major este că o puteți personaliza exact după gustul și nevoile voastre – partea cea mai grea a construcției este deja făcută. Se poate transforma în casa ideală în aproximativ 6 luni.
Pentru detalii, mă puteți contacta direct – vânzător privat.
Compartimentare practică:
Parter – living mare, bucătărie separată (se poate face open space), dormitor, baie, spațiu tehnic, cămară și terasă de acces.
Etaj – 2 dormitoare cu băi proprii și dressing generos fiecare, un dormitor dispune de terasă spre strada.
Anexa/ Garaj - 35 mp
Teren 1700 mp, curtea se întinde până la canalul de la digul Oltului, cu potențial investițional (posibilitate parcelare pentru loturi de case). Utilități pe teren: apă, canalizare, curent. Casă intabulată, cu toate actele la zi.
Priveliște superbă: în spate spre dealurile Galati- Șona–Șoarș, iar în față spre Munții Făgărașului.
Avantajul major este că o puteți personaliza exact după gustul și nevoile voastre – partea cea mai grea a construcției este deja făcută. Se poate transforma în casa ideală în aproximativ 6 luni.
Pentru detalii, mă puteți contacta direct – vânzător privat.
ID: 299779480
Contactează vânzătorul
xxx xxx xxx