Postat 21 ianuarie 2026
Casă Premium ..Breazu,Pădurea Marzesti
340 000 €
Persoana fizica
Camere: 4 sau mai multe
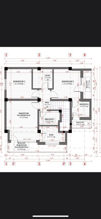
Suprafata utila: 155 m²
Locuinta mobilata / utilata: Nemobilata / neutilata
Descriere
Casă De vânzare Breazu /Padurea Marzesti
- Te invitam sa descoperi o locuință moderna și luminoasă ,Construită cu grijă și finisată la cele mai înalte standarde .
* Suprafața utilă 155 utili
* Teren 500 mp
* Balcoane 2 x 6 mp
# Compartimentare ideala :
Parter : Living Generos , Dormitor , Zona de dining ,
Bucătărie cu ieșire pe terasă , Baie , Hol
# Etaj : 3 Dormitoare , 2 băi , 2 Dresinguri ,2 balcoane
# Avantaje care fac diferența …
# Construcție pe Cadre de beton
# 6 Tone de fier doar în fundație
# Stâlpi de rezistență cu câte 8 Bare/fier de 16 cu etrieri în stea
#Grinzi 6 Bare fier de 14 #BETON c20/25
#Constructie din Cărămidă BKS
# placa peste parter - Monolit-
#Placa peste Etaj ieșită în consolă / Acoperă balcoanele
# Tavane înalte -3 m la parter , 2,75 m la etaj
# Ferestre Veka cu 7 camere foarte mari din pardoseala pana in grinda - lumina naturala pe tot parcursul zilei
# Aceasta casa îmbina perfect siguranța , eleganța și confortul..Este locul unde te vei simți acasă din prima clipă .
#Finalizare 10.07.2026!
- Te invitam sa descoperi o locuință moderna și luminoasă ,Construită cu grijă și finisată la cele mai înalte standarde .
* Suprafața utilă 155 utili
* Teren 500 mp
* Balcoane 2 x 6 mp
# Compartimentare ideala :
Parter : Living Generos , Dormitor , Zona de dining ,
Bucătărie cu ieșire pe terasă , Baie , Hol
# Etaj : 3 Dormitoare , 2 băi , 2 Dresinguri ,2 balcoane
# Avantaje care fac diferența …
# Construcție pe Cadre de beton
# 6 Tone de fier doar în fundație
# Stâlpi de rezistență cu câte 8 Bare/fier de 16 cu etrieri în stea
#Grinzi 6 Bare fier de 14 #BETON c20/25
#Constructie din Cărămidă BKS
# placa peste parter - Monolit-
#Placa peste Etaj ieșită în consolă / Acoperă balcoanele
# Tavane înalte -3 m la parter , 2,75 m la etaj
# Ferestre Veka cu 7 camere foarte mari din pardoseala pana in grinda - lumina naturala pe tot parcursul zilei
# Aceasta casa îmbina perfect siguranța , eleganța și confortul..Este locul unde te vei simți acasă din prima clipă .
#Finalizare 10.07.2026!
ID: 292971575
Contactează vânzătorul
xxx xxx xxx