Postat 16 octombrie 2025
Casa parter, 3 camere, 94mp, teren 500mp, Brasov, Izvor.
165 000 €
Prețul e negociabil
Firma
Camere: 3 camere
Suprafata utila: 94 m²
Locuinta mobilata / utilata: Partial
Descriere
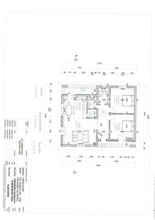
Casa parter, constructie beton armat si caramida Porotherm de 25cm, geamuri termopan cu trei foi de sticla, acoperis tigla Terran, pod circulabil, termosistem polistiren 10 cm cu EPS 80, incalzire in pardoseala.
Living 25 mp, Bucatarie 15mp, Dormitor 1 - 17mp, Dormitor 2 - 16mp, Hol 10mp, Baie 1 - 5mp, Baie 2 - 3mp, Camara 2,5 mp, Terasa acoperita 1- 9mp, Terasa acoperita 2 - 6mp.
Suprafata construita 120 mp, Suprafata utila 94mp, Teren 500mp.
Optional : izolatie vata bazaltica, finisaje si compartimentare pod circulabil rezultand 40mp suplimentari de suprafata locuibila.
Locatie: Cartier Izvor, Tarlungeni, Brasov.
Utilitati: apa, gaz, curent, fibra optica.
Pret 165000 Euro (TVA 21% inclus)
Termen de predare 05.2026
Living 25 mp, Bucatarie 15mp, Dormitor 1 - 17mp, Dormitor 2 - 16mp, Hol 10mp, Baie 1 - 5mp, Baie 2 - 3mp, Camara 2,5 mp, Terasa acoperita 1- 9mp, Terasa acoperita 2 - 6mp.
Suprafata construita 120 mp, Suprafata utila 94mp, Teren 500mp.
Optional : izolatie vata bazaltica, finisaje si compartimentare pod circulabil rezultand 40mp suplimentari de suprafata locuibila.
Locatie: Cartier Izvor, Tarlungeni, Brasov.
Utilitati: apa, gaz, curent, fibra optica.
Pret 165000 Euro (TVA 21% inclus)
Termen de predare 05.2026
ID: 292518137
Contactează vânzătorul
xxx xxx xxx