Postat 18 octombrie 2025
Casa P+E,de vanzare - Sanmartin,str Imp. Traian
220 000 €
Persoana fizica
Camere: 4 sau mai multe
Suprafata utila: 190 m²
Descriere
Casă modernă P+E – Sânmartin, str. Împăratul Traian
Suprafață construită: 190 mp
Suprafață utilă: 140 mp + terasă 27 mp
Teren: 470 mp (dublu front stradal)
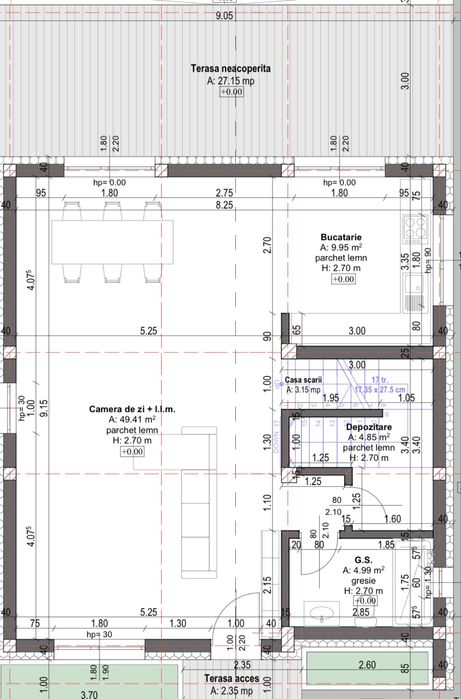
Parter
• Living – 49 mp
• Bucătărie – 10 mp
• Baie – 5 mp
• Debara – 5 mp
•. Terasă –27mp
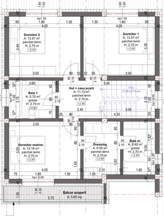
Etaj
• Hol + casa scării – 11,7 mp
• Baie – 5,7 mp
• Dormitor 1 – 14 mp
• Dormitor 2 – 14 mp
• Dormitor matrimonial – 13 mp +Dressing–6,5mp + Baie–5,4mp
•. Balcon — 6mp
Structură
• Cărămidă Cemacon
• Planșeu parter + etaj din beton
• Țiglă Bramac
• Ferestre și uși premium, dotate cu geam tripan (3 straturi de sticlă) și protecție UV
Izolație exterior
• Polistiren 15 cm (EPS 100)
• Tencuială decorativă
• Fațada include o zonă decorativă placată cu travertin
Interior
• Tencuit, gletuit, zugrăvit alb
• Instalație electrică completă – aparataj Gewiss
• Încălzire în pardoseală cu distribuitor separat pentru fiecare nivel
Utilități
• Apă
• Canalizare
• Gaz
• Curent
Casa se vinde în stadiul exterior, conform imaginilor de prezentare.
Preț: 220.000 €
Nu colaborez cu agenții imobiliare
Suprafață construită: 190 mp
Suprafață utilă: 140 mp + terasă 27 mp
Teren: 470 mp (dublu front stradal)
Parter
• Living – 49 mp
• Bucătărie – 10 mp
• Baie – 5 mp
• Debara – 5 mp
•. Terasă –27mp
Etaj
• Hol + casa scării – 11,7 mp
• Baie – 5,7 mp
• Dormitor 1 – 14 mp
• Dormitor 2 – 14 mp
• Dormitor matrimonial – 13 mp +Dressing–6,5mp + Baie–5,4mp
•. Balcon — 6mp
Structură
• Cărămidă Cemacon
• Planșeu parter + etaj din beton
• Țiglă Bramac
• Ferestre și uși premium, dotate cu geam tripan (3 straturi de sticlă) și protecție UV
Izolație exterior
• Polistiren 15 cm (EPS 100)
• Tencuială decorativă
• Fațada include o zonă decorativă placată cu travertin
Interior
• Tencuit, gletuit, zugrăvit alb
• Instalație electrică completă – aparataj Gewiss
• Încălzire în pardoseală cu distribuitor separat pentru fiecare nivel
Utilități
• Apă
• Canalizare
• Gaz
• Curent
Casa se vinde în stadiul exterior, conform imaginilor de prezentare.
Preț: 220.000 €
Nu colaborez cu agenții imobiliare
ID: 293932472
Contactează vânzătorul
xxx xxx xxx