Postat 15 octombrie 2025
Casă P+1 , Selgros , preţ nou 125.000 euro (preţ vechi 140.000 euro)
125 000 €
Prețul e negociabil
Persoana fizica
Camere: 4 sau mai multe
Suprafata utila: 162 m²
Locuinta mobilata / utilata: Nemobilata / neutilata
Descriere
Vând casă la roşu parter+etaj la 300 de metri de Selgros , construcție 2025.
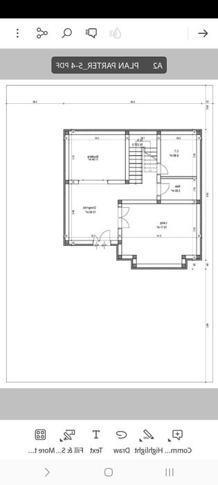
Casa are 162 mp utili (81 mp pe nivel) plus terasă 30 mp , terenul având 14 metri deschidere cu 20 m adâncime (290 mp).
Înălţimea fundaţiei este 1.40 m , 80 cm fiind peste cota zero (se poate observa în poze).
La parter se află Hall , living , bucătarie , baie de serviciu , camera tehnică , casa scării şi terasa în spate.
La etaj sunt 3 dormitoare (decomandate) , baie , dresing , 2 balcoane.
Casa nu a fost facută pentru vânzare , este construită conform proiectului , fiind consumaţi peste 40 mc beton si 15 tone fier. Totul a fost turnat în cofraj de panouri .
Casa are două plăci de beton , atât între etaje cât si la pod.
Zidăria este din BCA Elpreco , iar acoperişul este cu învelitoare Bilka .
Sub terasă , care are aceeaşi fundaţie cu fundația casei este construit din beton un beci de 10 mp .
Fosă septică (zidită) cu un volum de 30 mc .
Utilităţile pe stradă sunt : curentul electric , apă , internet , fiind demarate lucrări pentru gazele naturale .
Este realizată instalaţia electrică .
Strada este Aleea 2 Teilor , are 9 m lăţime iar ca reper este prima strada la stanga pe str. Teilor , după magazinul "La doi paşi" .
Deţin poze şi filmări pe toată durata execuţiei .
Mă puteţi contacta pentru alte detalii .
Casa are 162 mp utili (81 mp pe nivel) plus terasă 30 mp , terenul având 14 metri deschidere cu 20 m adâncime (290 mp).
Înălţimea fundaţiei este 1.40 m , 80 cm fiind peste cota zero (se poate observa în poze).
La parter se află Hall , living , bucătarie , baie de serviciu , camera tehnică , casa scării şi terasa în spate.
La etaj sunt 3 dormitoare (decomandate) , baie , dresing , 2 balcoane.
Casa nu a fost facută pentru vânzare , este construită conform proiectului , fiind consumaţi peste 40 mc beton si 15 tone fier. Totul a fost turnat în cofraj de panouri .
Casa are două plăci de beton , atât între etaje cât si la pod.
Zidăria este din BCA Elpreco , iar acoperişul este cu învelitoare Bilka .
Sub terasă , care are aceeaşi fundaţie cu fundația casei este construit din beton un beci de 10 mp .
Fosă septică (zidită) cu un volum de 30 mc .
Utilităţile pe stradă sunt : curentul electric , apă , internet , fiind demarate lucrări pentru gazele naturale .
Este realizată instalaţia electrică .
Strada este Aleea 2 Teilor , are 9 m lăţime iar ca reper este prima strada la stanga pe str. Teilor , după magazinul "La doi paşi" .
Deţin poze şi filmări pe toată durata execuţiei .
Mă puteţi contacta pentru alte detalii .
ID: 286417867
Contactează vânzătorul
xxx xxx xxx