Reactualizat la 05 aprilie 2026
Casă nouă P+E, Selgros Ford Casa Noastră
229 000 €
Persoana fizica
Camere: 4 sau mai multe
Suprafata utila: 120 m²
Locuinta mobilata / utilata: Partial
Descriere
Vă propunem spre achiziție o proprietate modernă, parte dintr-un mic ansamblu rezidențial format din 6 case individuale, amplasate într-o zonă liniștită și complet urbanizată, ideală pentru familii și persoane care apreciază confortul și calitatea. (Langa locul de joaca Little Town)
Detalii generale:
Suprafață teren: 302 mp
Suprafață utilă casă: 120 mp
Regim de înălțime: Parter + Etaj (P+E)
Construcție nouă, predare la cheie, cu finisaje moderne și materiale premium
Compartimentare inteligentă:
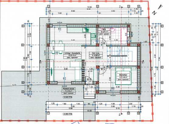
Parter:
Hol de acces
Cameră / birou
Baie complet echipată
Living open-space cu bucătărie (≈25 mp)
Terasă acoperită de 20 mp
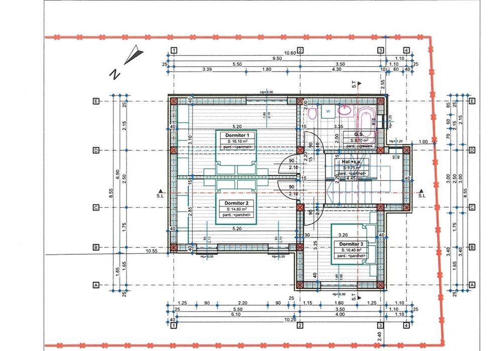
Etaj:
3 dormitoare spațioase
Baie complet utilată
Dotări și beneficii suplimentare:
Sistem de supraveghere video și sistem de alarmă antiefracție
Poartă auto automatizată
Sistem automat de irigare a gazonului
Încălzire în pardoseală în toată casa
Băi complet utilate (chiuvete moderne, cabină de duș cu sticlă securizată, cadă)
Racord complet la toate utilitățile: gaz, apă, canalizare, fibră optică DIGI
Străzi asfaltate, cu iluminat public funcțional
Finisaje premium alese cu atenție pentru durabilitate și estetică
Avantaje:
Comunitate restrânsă, sigură și de calitate
Zonă liniștită, modernă, cu acces rapid către principalele artere ale orașului
Ideală pentru o familie modernă care își dorește confort, intimitate și un stil de viață premium
Pentru detalii suplimentare și vizionare, vă invităm să ne contactați telefonic.
Detalii generale:
Suprafață teren: 302 mp
Suprafață utilă casă: 120 mp
Regim de înălțime: Parter + Etaj (P+E)
Construcție nouă, predare la cheie, cu finisaje moderne și materiale premium
Compartimentare inteligentă:
Parter:
Hol de acces
Cameră / birou
Baie complet echipată
Living open-space cu bucătărie (≈25 mp)
Terasă acoperită de 20 mp
Etaj:
3 dormitoare spațioase
Baie complet utilată
Dotări și beneficii suplimentare:
Sistem de supraveghere video și sistem de alarmă antiefracție
Poartă auto automatizată
Sistem automat de irigare a gazonului
Încălzire în pardoseală în toată casa
Băi complet utilate (chiuvete moderne, cabină de duș cu sticlă securizată, cadă)
Racord complet la toate utilitățile: gaz, apă, canalizare, fibră optică DIGI
Străzi asfaltate, cu iluminat public funcțional
Finisaje premium alese cu atenție pentru durabilitate și estetică
Avantaje:
Comunitate restrânsă, sigură și de calitate
Zonă liniștită, modernă, cu acces rapid către principalele artere ale orașului
Ideală pentru o familie modernă care își dorește confort, intimitate și un stil de viață premium
Pentru detalii suplimentare și vizionare, vă invităm să ne contactați telefonic.
ID: 284112150
Contactează vânzătorul
xxx xxx xxx