Postat 22 ianuarie 2026
Casa noua de vanzare - Ulmi, zona Sagricom
225 000 €
Persoana fizica
Camere: 4 sau mai multe
Suprafata utila: 155 m²
Locuinta mobilata / utilata: Nemobilata / neutilata
Descriere
CASA NOUA, MODERNA, PREGATITA SA DEVINA ACASA
Direct proprietar
Ulmi, zona Sagricom, la doar 500 m de viitorul centru comercial Galeriile Iris
Descopera o locuinta construita cu atentie la detalii, gandita pentru confort, tehnologie si un stil de viata modern. O casa care iti ofera spatiu, liniste si acces rapid catre oras.
Detalii generale
Suprafata construita 212 mp
Suprafata utila 155 mp
Amprenta la sol 106 mp
Suprafata curte 406 mp
Regim de inaltime Parter + Etaj + Pod
Casa se afla in faza finala de finisare exterior si interior
Compartimentare inteligenta si functionala
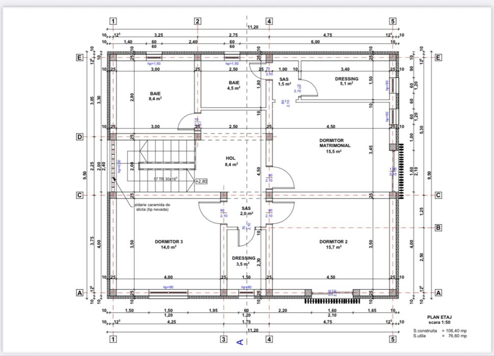
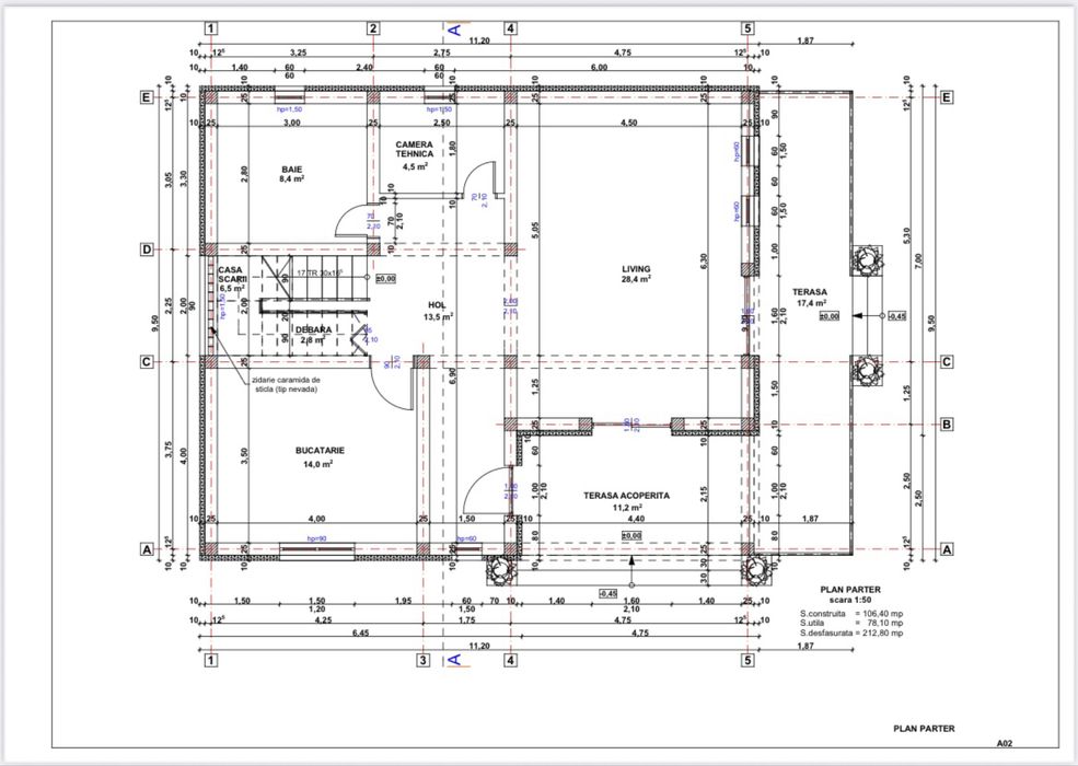
Parter
Living luminos, ideal pentru momentele in familie
Bucatarie spatioasa
Baie
Camera tehnica
Hol generos
Casa scarii
Doua terase, perfecte pentru relaxare sau socializare
Etaj
Dormitor matrimonial cu baie proprie si dressing
Doua dormitoare luminoase
Baie pe hol
Dressing suplimentar pe hol, un mare plus pentru organizare
Confort si tehnologie
Incalzire prin pardoseala
Termostate ambientale pe fiecare zona
Instalatie electrica smart, cu control de la distanta
Racordata la toate utilitatile gaz, electricitate, apa si canalizare
Curte generoasa de 406 mp, ideala pentru gradina, loc de joaca sau zona de relaxare
Localizare excelenta
La intrare in Ulmi, zona Sagricom, intr-o zona linistita, cu acces rapid catre oras si la doar 500 m de viitorul centru comercial Galeriile Iris
Pret 225.000 euro
Telefon 07********94
Casa noua
Tehnologie moderna
Curte mare
Locatie in plina dezvoltare
Suna acum pentru mai multe detalii si pentru a programa o vizionare.
Direct proprietar
Ulmi, zona Sagricom, la doar 500 m de viitorul centru comercial Galeriile Iris
Descopera o locuinta construita cu atentie la detalii, gandita pentru confort, tehnologie si un stil de viata modern. O casa care iti ofera spatiu, liniste si acces rapid catre oras.
Detalii generale
Suprafata construita 212 mp
Suprafata utila 155 mp
Amprenta la sol 106 mp
Suprafata curte 406 mp
Regim de inaltime Parter + Etaj + Pod
Casa se afla in faza finala de finisare exterior si interior
Compartimentare inteligenta si functionala
Parter
Living luminos, ideal pentru momentele in familie
Bucatarie spatioasa
Baie
Camera tehnica
Hol generos
Casa scarii
Doua terase, perfecte pentru relaxare sau socializare
Etaj
Dormitor matrimonial cu baie proprie si dressing
Doua dormitoare luminoase
Baie pe hol
Dressing suplimentar pe hol, un mare plus pentru organizare
Confort si tehnologie
Incalzire prin pardoseala
Termostate ambientale pe fiecare zona
Instalatie electrica smart, cu control de la distanta
Racordata la toate utilitatile gaz, electricitate, apa si canalizare
Curte generoasa de 406 mp, ideala pentru gradina, loc de joaca sau zona de relaxare
Localizare excelenta
La intrare in Ulmi, zona Sagricom, intr-o zona linistita, cu acces rapid catre oras si la doar 500 m de viitorul centru comercial Galeriile Iris
Pret 225.000 euro
Telefon 07********94
Casa noua
Tehnologie moderna
Curte mare
Locatie in plina dezvoltare
Suna acum pentru mai multe detalii si pentru a programa o vizionare.
ID: 297504508
Contactează vânzătorul
xxx xxx xxx
Localitate
Targoviste
Dambovita