Postat 21 octombrie 2025
Casă noua de vânzare + teren 1.100 mp – zona metropolitană Cluj-Napoca
275 000 €
Persoana fizica
Camere: 4 sau mai multe
Suprafata utila: 140 m²
Locuinta mobilata / utilata: Nemobilata / neutilata
Descriere
Casă de vânzare + teren 1.100 mp – zona metropolitană Cluj-Napoca
Localizare: Sat Sălicea, lângă stația de autobuz M16, cu acces direct spre Cluj-Napoca. Proprietatea are front la 2 străzi (47 ml + 20 ml), inclusiv la strada principală, și beneficiază de un peisaj frumos și deschis.
Date tehnice
- Suprafață construita: 180 mp
- Suprafață utilă: 140 mp
- Teren: 1.100 mp
- Predare: primăvara 2026, semifinisat
- Construcție conform standard nZEB (Near Zero Energy Building)
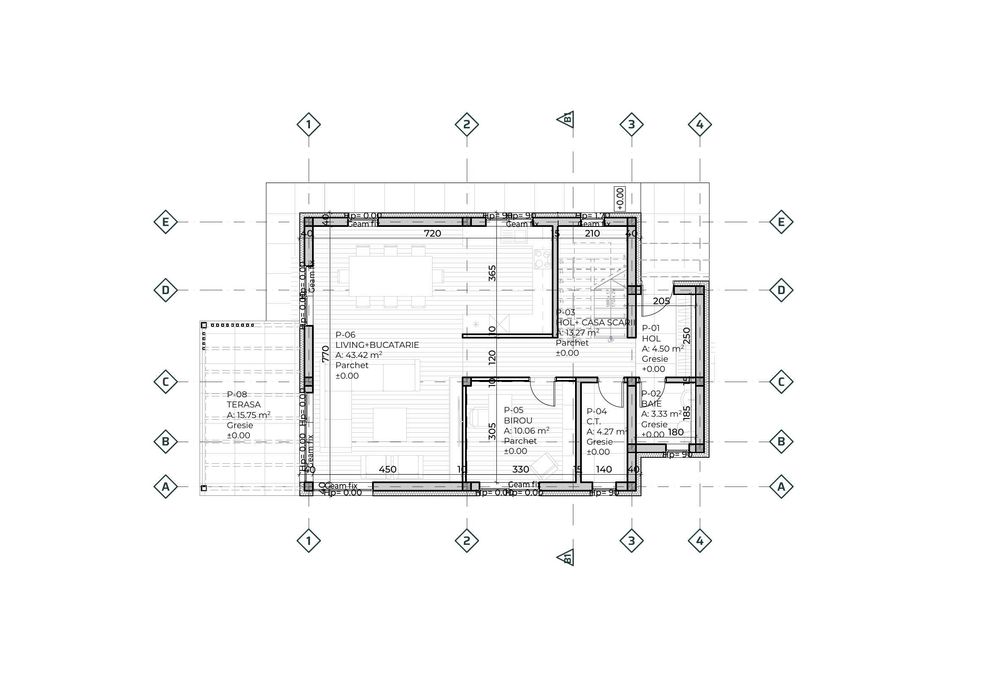
Compartimentare
- Parter: living cu bucătărie, birou (sau extindere living), baie, cameră tehnică
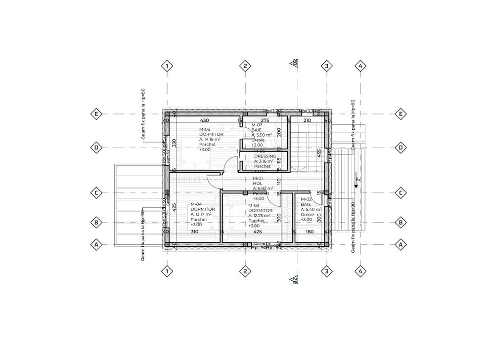
- Etaj: 3 dormitoare, 2 băi, dressing
Dotări și utilități
- Încălzire în pardoseală cu pompă de căldură
- Curent electric
- Internet fibră optică
- Fosă septică
Avantaje
- Zonă liniștită, aproape de natură, dar cu acces rapid spre Cluj
- Casă modernă și eficientă energetic
- Teren generos, cu front la 2 străzi – multiple posibilități de utilizare
Pentru detalii și vizionări, vă stau la dispoziție telefonic.
Localizare: Sat Sălicea, lângă stația de autobuz M16, cu acces direct spre Cluj-Napoca. Proprietatea are front la 2 străzi (47 ml + 20 ml), inclusiv la strada principală, și beneficiază de un peisaj frumos și deschis.
Date tehnice
- Suprafață construita: 180 mp
- Suprafață utilă: 140 mp
- Teren: 1.100 mp
- Predare: primăvara 2026, semifinisat
- Construcție conform standard nZEB (Near Zero Energy Building)
Compartimentare
- Parter: living cu bucătărie, birou (sau extindere living), baie, cameră tehnică
- Etaj: 3 dormitoare, 2 băi, dressing
Dotări și utilități
- Încălzire în pardoseală cu pompă de căldură
- Curent electric
- Internet fibră optică
- Fosă septică
Avantaje
- Zonă liniștită, aproape de natură, dar cu acces rapid spre Cluj
- Casă modernă și eficientă energetic
- Teren generos, cu front la 2 străzi – multiple posibilități de utilizare
Pentru detalii și vizionări, vă stau la dispoziție telefonic.
ID: 294251973
Contactează vânzătorul
xxx xxx xxx
Localitate
Cluj-Napoca
Cluj