Postat 01 octombrie 2025
Casa noua de vanzare Santandrei la cheie/semifinisat - Orion Residence
139 000 €
Firma
Camere: 4 sau mai multe
Suprafata utila: 113 m²
Locuinta mobilata / utilata: Partial
Descriere
Orion Residence vă oferă spre vânzare o casă modernă, parte dintr-un proiect nou deosebit, disponibilă la cheie sau semifinisată avansat, direct de la dezvoltator (fără comisioane). Imobilul dispune de gaz, apă, canalizare și curent trifazic, toate racordate la casă, și beneficiază de finisaje de calitate.
Locația este în Sântandrei, pe strada Lalelelor, într-o zonă foarte liniștită, în spatele Primăriei.
- Pret casa semifinisata: 139.000 Euro TVA inclus!
- Pret casa la cheie: 157.000 euro cu TVA inclus!
Buget casa la cheie:gresie/faianta 80 lei/mp,parchet 80 lei/mp,usile 1000 ron/buc,baile complet utilate(wc,chiuveta,baterii,vana,etc.) in limita a 2000 ron/baie!
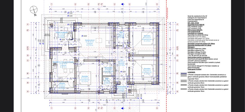
Casa are o suprafata construita de 142 mp si utila de 101 mp + terasa de 12 mp acoperita pe un teren de 500 mp! Casa este compusa din:
-3 dormitoare din care unul cu baie proprie si dresing
-2 bai complet utilate
-living
-bucatarie(open space sau inchisa,la alegere)
-dresing
-camara/spatiu tehnic
-terasa acoperita
Detalii tehnice case:
-inaltime interioara utila 2.80 metri
-trotuare perimetrul casei
-zidarie caramida
-izolatie polistiren de 10 cm eps 80
-izolatie tavan vata bazaltica
-burlane complete culoarea acoperisului
-incalzire in pardoseala
-instalatia electrica completa(prize,rame,intrerupatoare,tablou sigurante GEWISS)
-Centrala gaz proprie
-tamplarie geamuri termopan Madrugada (sticla 4 anotimpuri,profil cu 7 camere si 3 randuri de sticle)
-usi interioare lemn(model la alegere)
-terasa acoperita
-tencuiala mecanizata pe baza de var,ciment si 3 maini de glet
-parchet laminat compatibil cu incalzirea in pardoseala
-ambele bai complet utilate(toaleta,bideu,chiuveta,oglinda,cabina de dus,vana,robineti etc.)
-gresie,faianta in ambele bai
-iluminat exterior casa pe toate partile(fata,spate,lateral)
Casa se preda cu toate actele,Cartea constructiei,certificat energetic si se ofera garantie 24 luni! Detin poze cu toate etapele constructiei!
Utilitati: Curent electric trifazat,apa,canalizare,gaz,internet & tv fibra RDS,iluminat stradal!
Acceptam plata prin credit bancar,Prima Casa sau alt tip de finantare!Putem recomanda banca pentru finantare!
Detalii suplimentare si pozele lucrarilor pe Facebook: Orion Residence
Link: https://www.facebook.com/profile.php?id=61555736605959
Site: www.orionresidence.ro
Locația este în Sântandrei, pe strada Lalelelor, într-o zonă foarte liniștită, în spatele Primăriei.
- Pret casa semifinisata: 139.000 Euro TVA inclus!
- Pret casa la cheie: 157.000 euro cu TVA inclus!
Buget casa la cheie:gresie/faianta 80 lei/mp,parchet 80 lei/mp,usile 1000 ron/buc,baile complet utilate(wc,chiuveta,baterii,vana,etc.) in limita a 2000 ron/baie!
Casa are o suprafata construita de 142 mp si utila de 101 mp + terasa de 12 mp acoperita pe un teren de 500 mp! Casa este compusa din:
-3 dormitoare din care unul cu baie proprie si dresing
-2 bai complet utilate
-living
-bucatarie(open space sau inchisa,la alegere)
-dresing
-camara/spatiu tehnic
-terasa acoperita
Detalii tehnice case:
-inaltime interioara utila 2.80 metri
-trotuare perimetrul casei
-zidarie caramida
-izolatie polistiren de 10 cm eps 80
-izolatie tavan vata bazaltica
-burlane complete culoarea acoperisului
-incalzire in pardoseala
-instalatia electrica completa(prize,rame,intrerupatoare,tablou sigurante GEWISS)
-Centrala gaz proprie
-tamplarie geamuri termopan Madrugada (sticla 4 anotimpuri,profil cu 7 camere si 3 randuri de sticle)
-usi interioare lemn(model la alegere)
-terasa acoperita
-tencuiala mecanizata pe baza de var,ciment si 3 maini de glet
-parchet laminat compatibil cu incalzirea in pardoseala
-ambele bai complet utilate(toaleta,bideu,chiuveta,oglinda,cabina de dus,vana,robineti etc.)
-gresie,faianta in ambele bai
-iluminat exterior casa pe toate partile(fata,spate,lateral)
Casa se preda cu toate actele,Cartea constructiei,certificat energetic si se ofera garantie 24 luni! Detin poze cu toate etapele constructiei!
Utilitati: Curent electric trifazat,apa,canalizare,gaz,internet & tv fibra RDS,iluminat stradal!
Acceptam plata prin credit bancar,Prima Casa sau alt tip de finantare!Putem recomanda banca pentru finantare!
Detalii suplimentare si pozele lucrarilor pe Facebook: Orion Residence
Link: https://www.facebook.com/profile.php?id=61555736605959
Site: www.orionresidence.ro
ID: 264069132
Contactează vânzătorul
xxx xxx xxx
Localitate
Santandrei
Bihor