Reactualizat la 13 februarie 2026
Casă nouă de vânzare in Dej
179 000 €
Persoana fizica
Camere: 4 sau mai multe
Suprafata utila: 200 m²
Locuinta mobilata / utilata: Nemobilata / neutilata
Descriere
Casă nouă construită in 2023-2024 in zonă liniștită cu panoramă deosebită pe strada Fântânilor (pe Mulatău).
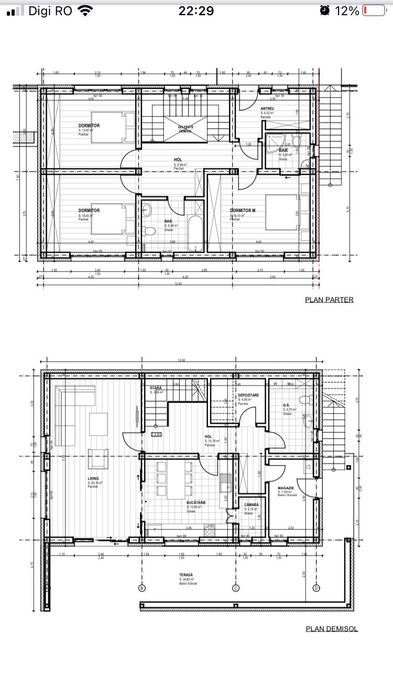
Suprafața construită incluzând terasa este de 245mp. Terenul aferent este de 527mp. Casa este pe două nivele:
-La parter are salon, bucătărie cu cămară alimente, camera tehnică, baie, două camere mici de depozitare și casa scării.
-La etaj are dormitor matrimonial cu baie, încă două dormitoare mari, baie și antreu.
-Dețin poze cu toate fazele constructiei.
-Înălțimea etajului de jos e de 2.85m, etajul de sus 2.60m. Podul este înalt de 2.50m deci poate fi făcut locuibil loc de joacă pt copii și depozitare.
Nu s-a făcut rabat de la calitate.
-Izolată cu polistiren de 15.
-Interior este cu instalatia electrică făcută și tencuită.
-Acoperită cu țiglă ceramică Creaton.
-Tâmplărie Veka 82 cu 3 sticle.
-Împrejmuită.
-Casa e gândită foarte bine cu camere mari și încăpătoare.
-Toate utilitățile: curent, gaz, canalizare și apă.
Mai multe informații la telefon.
Suprafața construită incluzând terasa este de 245mp. Terenul aferent este de 527mp. Casa este pe două nivele:
-La parter are salon, bucătărie cu cămară alimente, camera tehnică, baie, două camere mici de depozitare și casa scării.
-La etaj are dormitor matrimonial cu baie, încă două dormitoare mari, baie și antreu.
-Dețin poze cu toate fazele constructiei.
-Înălțimea etajului de jos e de 2.85m, etajul de sus 2.60m. Podul este înalt de 2.50m deci poate fi făcut locuibil loc de joacă pt copii și depozitare.
Nu s-a făcut rabat de la calitate.
-Izolată cu polistiren de 15.
-Interior este cu instalatia electrică făcută și tencuită.
-Acoperită cu țiglă ceramică Creaton.
-Tâmplărie Veka 82 cu 3 sticle.
-Împrejmuită.
-Casa e gândită foarte bine cu camere mari și încăpătoare.
-Toate utilitățile: curent, gaz, canalizare și apă.
Mai multe informații la telefon.
ID: 265658525
Contactează vânzătorul
xxx xxx xxx