Casă nouă 3 dormitoare | 102 mp utili | Teren 372 mp | Westfield Arad
149 500 €
Firma
Camere: 4 sau mai multe
Suprafata utila: 102 m²
Descriere
Îți dorești o casă nouă, construită exact pentru tine, fără compromisuri?
Această locuință din cartierul Westfield îți oferă combinația ideală între confort, funcționalitate și liniște.
Se realizează pe comandă și este gata în aproximativ 3 luni, ceea ce înseamnă că ai control și flexibilitate în proces.
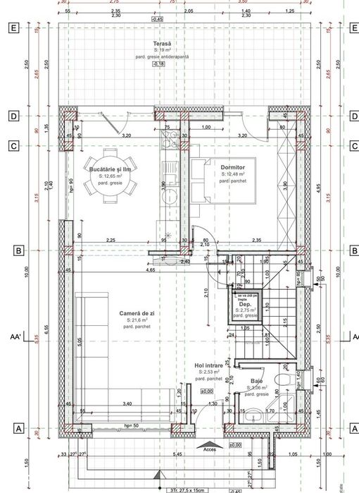
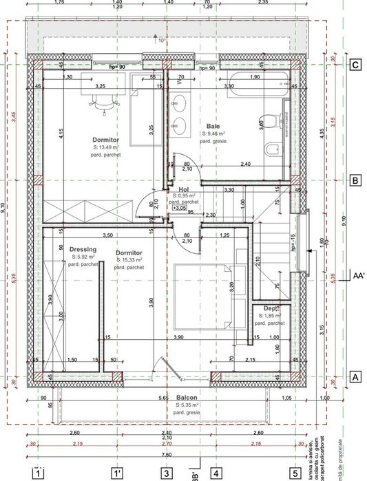
Compartimentare inteligentă:
3 dormitoare, dintre care unul cu dressing
2 băi
Living spațios cu zonă de luat masa
Bucătărie
Terasă perfectă pentru relaxare
Suprafață utilă: 102 mp
Parcela teren: 372 mp
Stadiul de predare al casei este după cum urmează: exteriorul complet finalizat, cu structurata si cărămidă aparaenta conform plan, iar interiorul are instalațiile sanitare, electrice si termice realizate, pardoseala este la nivel de șapǎ, iar pereții la nivel de glet.
Casa este gândită pentru un stil de viață modern, cu spații bine organizate și luminoase, ideale pentru o familie.
Situată în cartierul Westfield – zonă liniștită, în dezvoltare, cu acces facil către oraș.
Preț: 149.500 euro TVA inclus
Pentru mai multe detalii sau vizionare, nu ezita să mă contactezi.
Contactează vânzătorul