Postat 10 aprilie 2026
Casa Modulara, Garaje Auto, Containere din structura metalica si panou sandwich termoizolant
6 500 €
Prețul e negociabil
Persoana fizica
Stare: Nou
Descriere
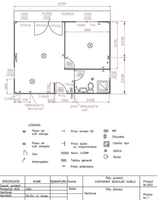
Construim Case Modulare, Garaje Auto si Containere tip birou din structura metalică și panouri sandwich termoizolante, dimensiuni in functie de preferintele clientilor cu proiectul clientului sau dupa proiectele noastre, folosind materiale de buna calitate, arhitectura deosebita, cu o echipa de exceptie cu experienta in acest domeniu.
Pentru informații ne puteți contacta la numărul de telefon:
AVANS 0%, plata se va face eșalonat pe parcursul lucrării.
Detalii tehnice pentru construcția la roșu:
- Talpa casei: fundație sau piloni.
- Pereți: structură metalică 100x100x3mm; panouri sandwich termoizolante de 100 mm.
- Tavan: grinzi de 150x100 mm (montate la distanțe de 60 cm); scândură de 25 mm.
- Acoperiș: grinzi de 150x100 mm (montate la distanțe de 60 cm); scândură de 25 mm; folie.
Detalii tehnice pentru construcția la gata:
- Talpa casei: gresie și parchet; instalații sanitare.
- Pereți exteriori: polistiren de 100 mm; tencuială; plasă; finisaj decorativ.
- Pereți interiori: vată bazaltică de 100 mm; instalații electrice; rigips; vopsea lavabilă; geamuri și uși.
- Tavan: vată bazaltică de 150 mm; rigips; vopsea lavabilă.
- Acoperiș: caroiaj din șipcă 50x25 mm; tablă tip țiglă metalică (culoare la alegere); accesorii.
Ne deplasăm în toată tara fără costuri suplimentare.
Acceptam si unele variante auto +/- diferenta!
Pentru informații ne puteți contacta la numărul de telefon:
AVANS 0%, plata se va face eșalonat pe parcursul lucrării.
Detalii tehnice pentru construcția la roșu:
- Talpa casei: fundație sau piloni.
- Pereți: structură metalică 100x100x3mm; panouri sandwich termoizolante de 100 mm.
- Tavan: grinzi de 150x100 mm (montate la distanțe de 60 cm); scândură de 25 mm.
- Acoperiș: grinzi de 150x100 mm (montate la distanțe de 60 cm); scândură de 25 mm; folie.
Detalii tehnice pentru construcția la gata:
- Talpa casei: gresie și parchet; instalații sanitare.
- Pereți exteriori: polistiren de 100 mm; tencuială; plasă; finisaj decorativ.
- Pereți interiori: vată bazaltică de 100 mm; instalații electrice; rigips; vopsea lavabilă; geamuri și uși.
- Tavan: vată bazaltică de 150 mm; rigips; vopsea lavabilă.
- Acoperiș: caroiaj din șipcă 50x25 mm; tablă tip țiglă metalică (culoare la alegere); accesorii.
Ne deplasăm în toată tara fără costuri suplimentare.
Acceptam si unele variante auto +/- diferenta!
ID: 302503695
Contactează vânzătorul
xxx xxx xxx