Postat 26 ianuarie 2026
Casă modulară cabană 50 m²
19 900 €
Persoana fizica
Stare: Utilizat
Descriere
Nu necesită aviz de construire
19.999 €
TRANSPORTUL INCLUS ÎN LIMITA
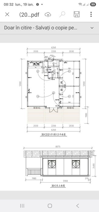
Casă modulară 50 m² 38 mp cu 12mp terasă camere, living open space + bucătărie
Vând casă modulară modernă, ideală pentru locuință permanentă, casă de vacanță sau birou.
Suprafață: 38 mp terasa 12 mp
2 camere
Living open space cu bucătărie echipată blaturi bucătărie marmură mobilier modern de calitate cu soft close
Baie complet echipată
Structură rezistentă, materiale de calitate
Izolație termică panou sandwich la acoperiș este dublu două rânduri acoperișul plus tavanul, instalații electrice și sanitare incluse tâmplărie geamuri uși este din aluminiu de calitate
se poate vedea în localitatea Năsăud Bulevardul George Coșbuc 234
Vezi video
https://youtu.be/gsD92VeKjkY
19.999 €
TRANSPORTUL INCLUS ÎN LIMITA
Casă modulară 50 m² 38 mp cu 12mp terasă camere, living open space + bucătărie
Vând casă modulară modernă, ideală pentru locuință permanentă, casă de vacanță sau birou.
Suprafață: 38 mp terasa 12 mp
2 camere
Living open space cu bucătărie echipată blaturi bucătărie marmură mobilier modern de calitate cu soft close
Baie complet echipată
Structură rezistentă, materiale de calitate
Izolație termică panou sandwich la acoperiș este dublu două rânduri acoperișul plus tavanul, instalații electrice și sanitare incluse tâmplărie geamuri uși este din aluminiu de calitate
se poate vedea în localitatea Năsăud Bulevardul George Coșbuc 234
Vezi video
https://youtu.be/gsD92VeKjkY
ID: 298653865
Contactează vânzătorul
xxx xxx xxx