Postat 27 martie 2026
Casa/Magurele/Ilfov/nZEB
230 000 €
Persoana fizica
Camere: 4 sau mai multe
Locuinta mobilata / utilata: Nemobilata / neutilata
Descriere
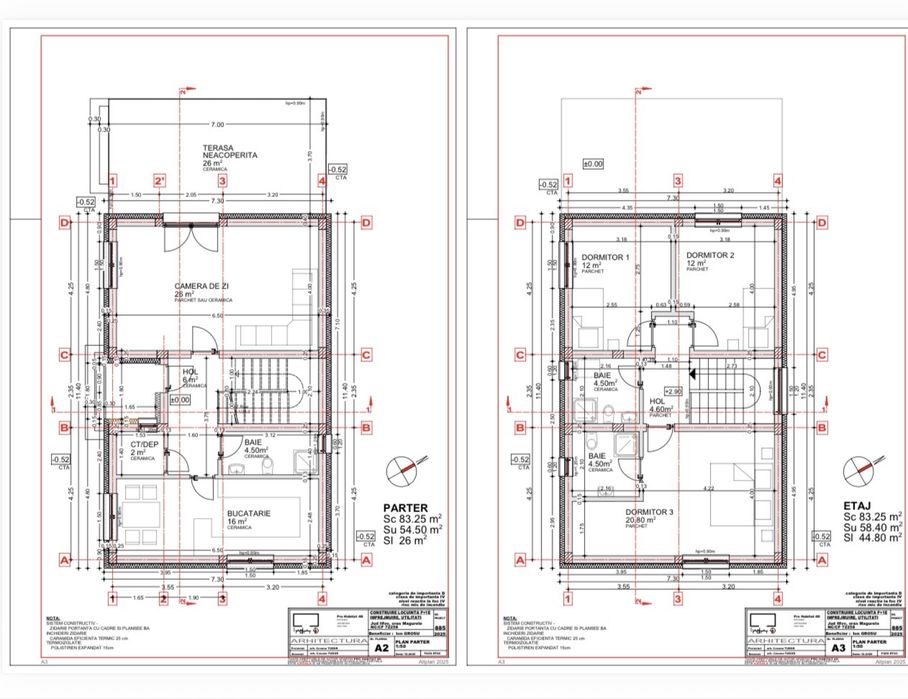
Casă /Măgurele / Ilfov,la standard eZEB, 4 camere, Living, bucătărie închisă , 3 dormitoare/ 3 băi.
Teren 360 mp, deschiderea la stradă de 14,10 ml.
Suprafata construita desfășurată 195 mp.
Construcție realizată din cărămidă poroterm de 25 cm inclusiv pereții interiori, acoperită cu tablă fălțuită BILKA cu grosimea de 0,5, placa de egalizare izolată cu extrudat, la fel și exteriorul elevație va fi izolat cu extrudat, sistemul de încălzire prin pardoseală pe două zone, fiecare etaj independent,podul va fi izolat cu vata de 25 cm, ferestrele din pvc cu profil salamander și sticla tripan cu benzi de etanșeitate, la exterior avem izolație de 15 cm cu decorativă siliconata.
Compartimentată astfel cu un design ușor, luminos în toată casa,
La parter avem Living cu ieșire în terasă neacoperită de 26 mp
Bucătărie închisă, camera tehnică, hol+ casa scării, baie, terasă acoperită
La etaj avem 3 dormitoare din care unul matrimonial cu baie și dressing propriu, o altă baie care deservește celelalte 2 dormitoare.
Casa se vinde la cheie și racordată la utilități, respectiv curent trifazat, gaze, apa/canal, internet.
Dacă dorești să-ți particularizezi căminul perfect te aștept la locație pentru detalii suplimentare.
Teren 360 mp, deschiderea la stradă de 14,10 ml.
Suprafata construita desfășurată 195 mp.
Construcție realizată din cărămidă poroterm de 25 cm inclusiv pereții interiori, acoperită cu tablă fălțuită BILKA cu grosimea de 0,5, placa de egalizare izolată cu extrudat, la fel și exteriorul elevație va fi izolat cu extrudat, sistemul de încălzire prin pardoseală pe două zone, fiecare etaj independent,podul va fi izolat cu vata de 25 cm, ferestrele din pvc cu profil salamander și sticla tripan cu benzi de etanșeitate, la exterior avem izolație de 15 cm cu decorativă siliconata.
Compartimentată astfel cu un design ușor, luminos în toată casa,
La parter avem Living cu ieșire în terasă neacoperită de 26 mp
Bucătărie închisă, camera tehnică, hol+ casa scării, baie, terasă acoperită
La etaj avem 3 dormitoare din care unul matrimonial cu baie și dressing propriu, o altă baie care deservește celelalte 2 dormitoare.
Casa se vinde la cheie și racordată la utilități, respectiv curent trifazat, gaze, apa/canal, internet.
Dacă dorești să-ți particularizezi căminul perfect te aștept la locație pentru detalii suplimentare.
ID: 301808629
Contactează vânzătorul
xxx xxx xxx
Localitate
Magurele
Bucuresti - Ilfov