Navighează la conținutul principal
Chat

Notificari

Contul tău

Adaugă anunț nou
Casa la rosu in cartierul Orizont
Casa la rosu in cartierul Orizont
Casa la rosu in cartierul Orizont
Casa la rosu in cartierul Orizont
Casa la rosu in cartierul Orizont
Casa la rosu in cartierul Orizont
Casa la rosu in cartierul Orizont
Casa la rosu in cartierul Orizont
Postat 22 februarie 2026

Casa la rosu in cartierul Orizont

99 000 €

PromoveazăReactualizează

Persoana fizica

Camere: 2 camere

Suprafata utila: 73 m²

Locuinta mobilata / utilata: Nemobilata / neutilata

Descriere

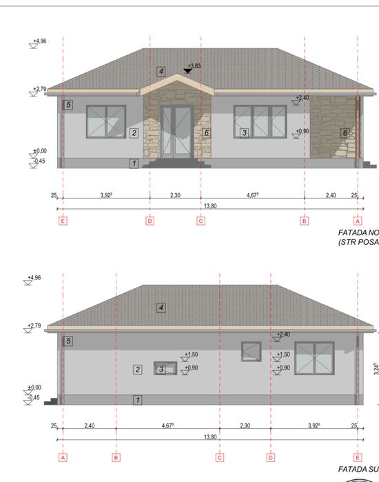
Casa la rosu de vanzare , pe un singur nivel . Casa Este situata in Alba Iulia zona Orizont .
Suprafata construita Este de 111 mp pe o parcela de 300 mp , iar suprafata utila Este de 73 mp.
Locuinta dispune de 2 dormitoare , 2 bai , living cu bucatarie open space , camara , terasa acoperita . Geamuri termopan salamander .
Utilitati : Curent in curs de racordare .
Pret negociabil
ID: 290859079

Contactează vânzătorul

Dan

Pe OLX din ianuarie 2018

Activ pe 14 februarie 2026

xxx xxx xxx

Localitate

Location

Alba Iulia

Alba

Descarca aplicatia pentru telefonul tau