Postat 19 mai 2025
Casa la mare - langa lac
158 000 €
Prețul e negociabil
Persoana fizica
Camere: 4 sau mai multe
Suprafata utila: 168 m²
Locuinta mobilata / utilata: Nemobilata / neutilata
Descriere
Vindem casa langa Mangalia, in comuna Limanu, la cativa pasi de lacul ce se uneste cu marea in portul Mangalia. Teren generos, de aproximativ 1100 mp, casa avand 168 mp utili. Afara este finisata, are geamuri mari si usi noi, in interior insa nu, fapt care poate lasa loc sa va puneti dumneavoastra "amprenta".
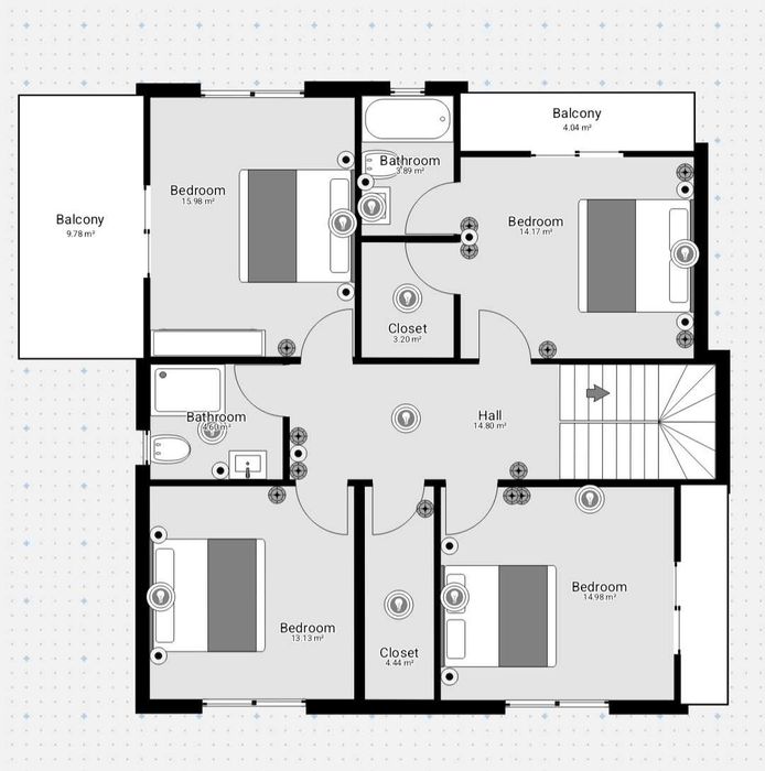
Distributia interioara se prezinta dupa cum urmeaza:
Parter: hol legat de living, bucatarie, baie, spatiu tehnic si 2 terase (una in fata si una in spate)
Etaj: 4 dormitoare (dintre care unul are baie si dressing), hol si baie, precum si 3 balcoane (2 mici si unul mare)
Acoperisul sub forma de terasa circulabila, unde se pot resimti aerosolii toata ziua
Se poate utiliza si ca si pensiune, marea fiind la 3-4 km departare, iar curtea permite chiar amplasarea unor corturi.
Mai multe detalii la numarul atasat
Suntem deschisi si la un schimburi in Alba Iulia
Distributia interioara se prezinta dupa cum urmeaza:
Parter: hol legat de living, bucatarie, baie, spatiu tehnic si 2 terase (una in fata si una in spate)
Etaj: 4 dormitoare (dintre care unul are baie si dressing), hol si baie, precum si 3 balcoane (2 mici si unul mare)
Acoperisul sub forma de terasa circulabila, unde se pot resimti aerosolii toata ziua
Se poate utiliza si ca si pensiune, marea fiind la 3-4 km departare, iar curtea permite chiar amplasarea unor corturi.
Mai multe detalii la numarul atasat
Suntem deschisi si la un schimburi in Alba Iulia
ID: 287228879
Contactează vânzătorul
xxx xxx xxx
Localitate
Limanu
Constanta