Reactualizat la 17 aprilie 2026
Casa la cuci noua 2026
91 000 €
Persoana fizica
Camere: 3 camere
Suprafata utila: 74 m²
Locuinta mobilata / utilata: Nemobilata / neutilata
Descriere
Se vinde casa noua in comuna Cuci strada 4,numărul 1(unu)
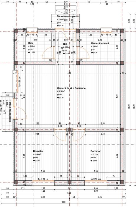
Fiind compusa din urmatoarele:
intrare acoperita
2camera 350/350
living open-space
hol
baie
camera tehnica
Casa are o suprafață UTILA de 75m²,fiind izolata la exterior cu polistiren expandat de 100mm,ulterior decorativa ,acoperișul este din tigla gri antracit, tâmplărie termopan cu 3 sticle(tripan) pentru o izolație fonica si termică mai buna,la interior este zugrăvit cu lavabilă siliconat, instalatii termice(radiatoare otel),instalatii electrice, prize/întrerupătoare montate.
Are toate utilitățile:apa,gaz,electricitate,canalizare(decantor de 6000l)
Gradul din fata casei este din bolțari umpluți cu beton,fundație de 80-90cm
Suprafata terenului este de 489m².
Fiind compusa din urmatoarele:
intrare acoperita
2camera 350/350
living open-space
hol
baie
camera tehnica
Casa are o suprafață UTILA de 75m²,fiind izolata la exterior cu polistiren expandat de 100mm,ulterior decorativa ,acoperișul este din tigla gri antracit, tâmplărie termopan cu 3 sticle(tripan) pentru o izolație fonica si termică mai buna,la interior este zugrăvit cu lavabilă siliconat, instalatii termice(radiatoare otel),instalatii electrice, prize/întrerupătoare montate.
Are toate utilitățile:apa,gaz,electricitate,canalizare(decantor de 6000l)
Gradul din fata casei este din bolțari umpluți cu beton,fundație de 80-90cm
Suprafata terenului este de 489m².
ID: 302466949
Contactează vânzătorul
xxx xxx xxx
